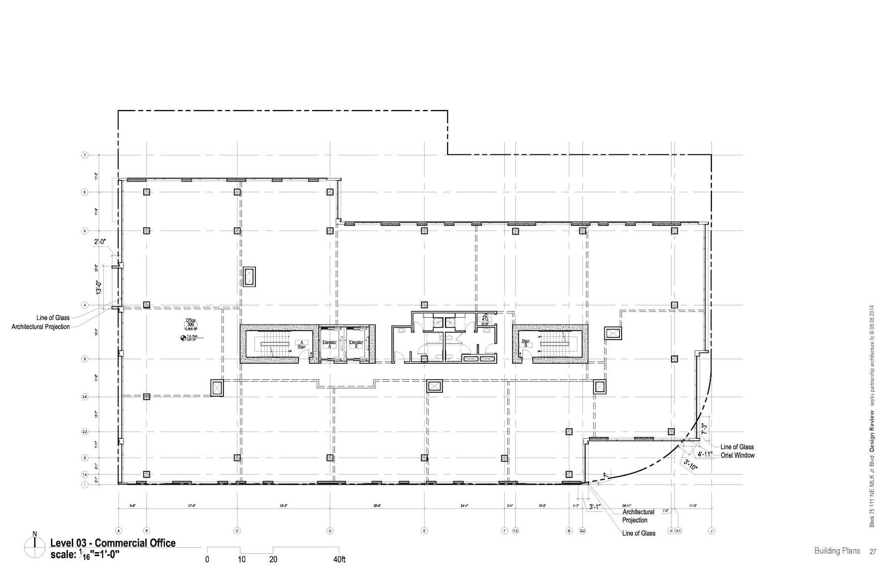
block_75_plan_03 Published January 15, 2015 at 1800 × 1165 in Burnside Bridgehead, pt I: Block 75 (images) ← Previous Next → Plan – Level 03 (Office)