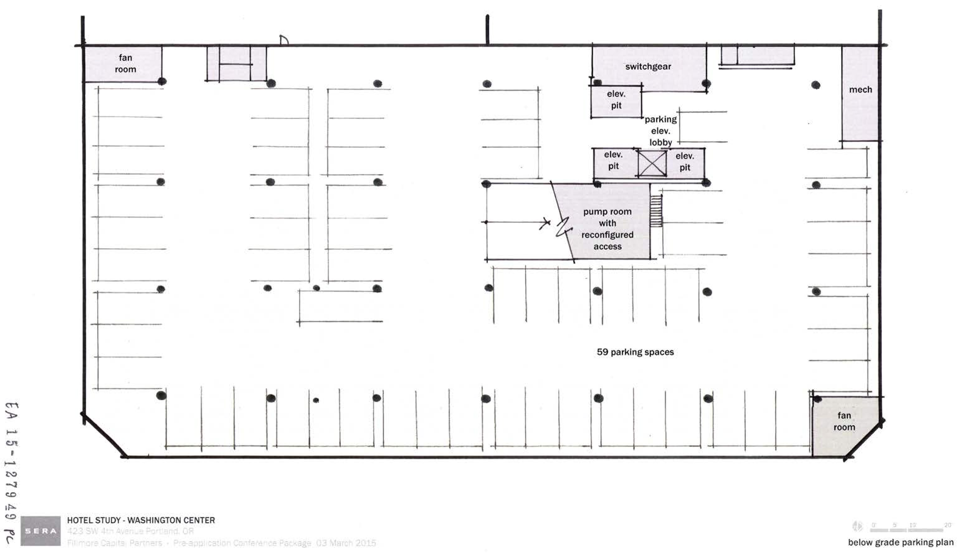
Published March 26, 2015 at 3088 × 1789 in Pre-Application Conference scheduled for hotel tower at 419 SW Washington St ← Previous Next → Plan – Below Grade Parking