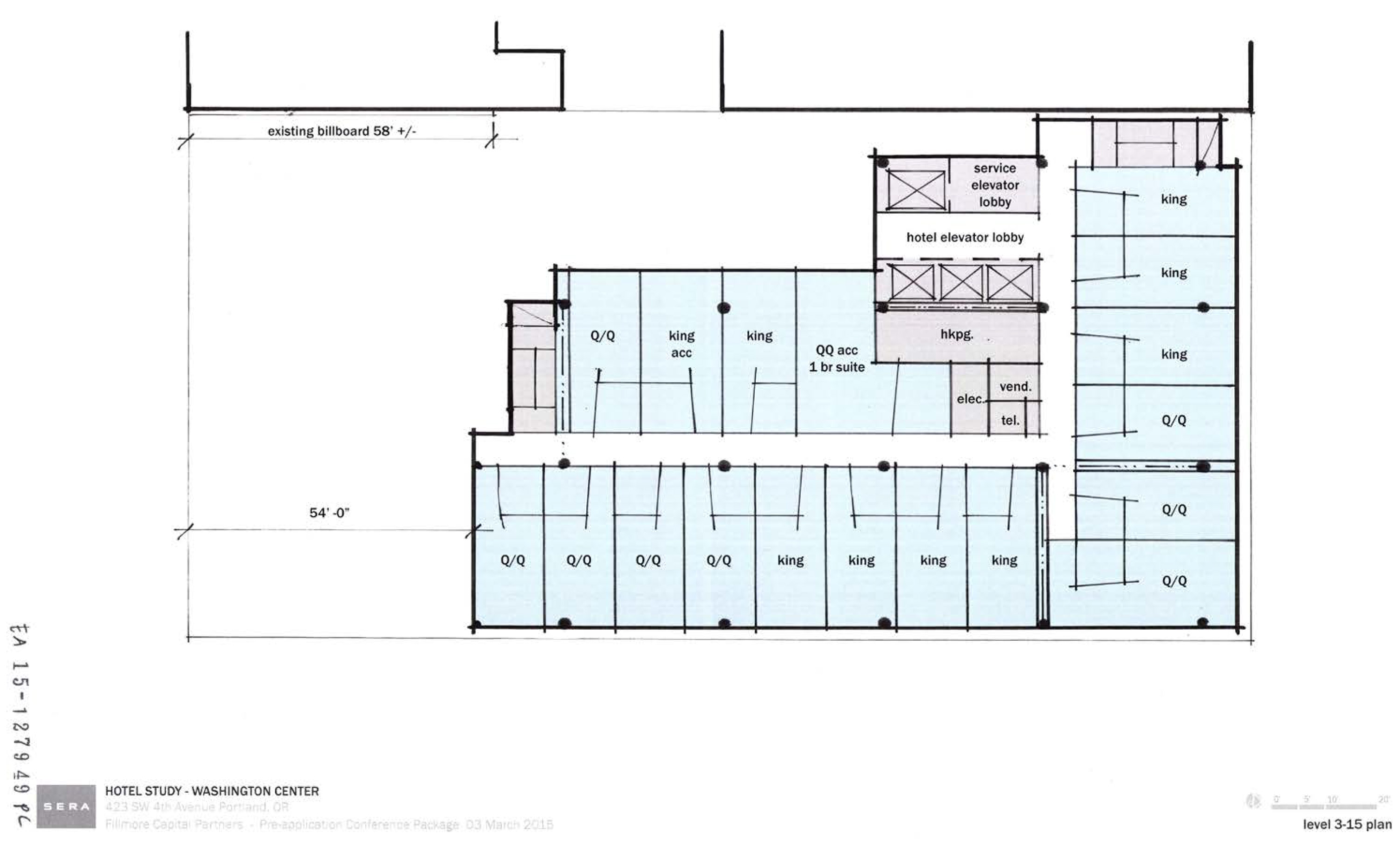
Published March 26, 2015 at 3016 × 1822 in Pre-Application Conference scheduled for hotel tower at 419 SW Washington St Next → Plan – Levels 3 to 15