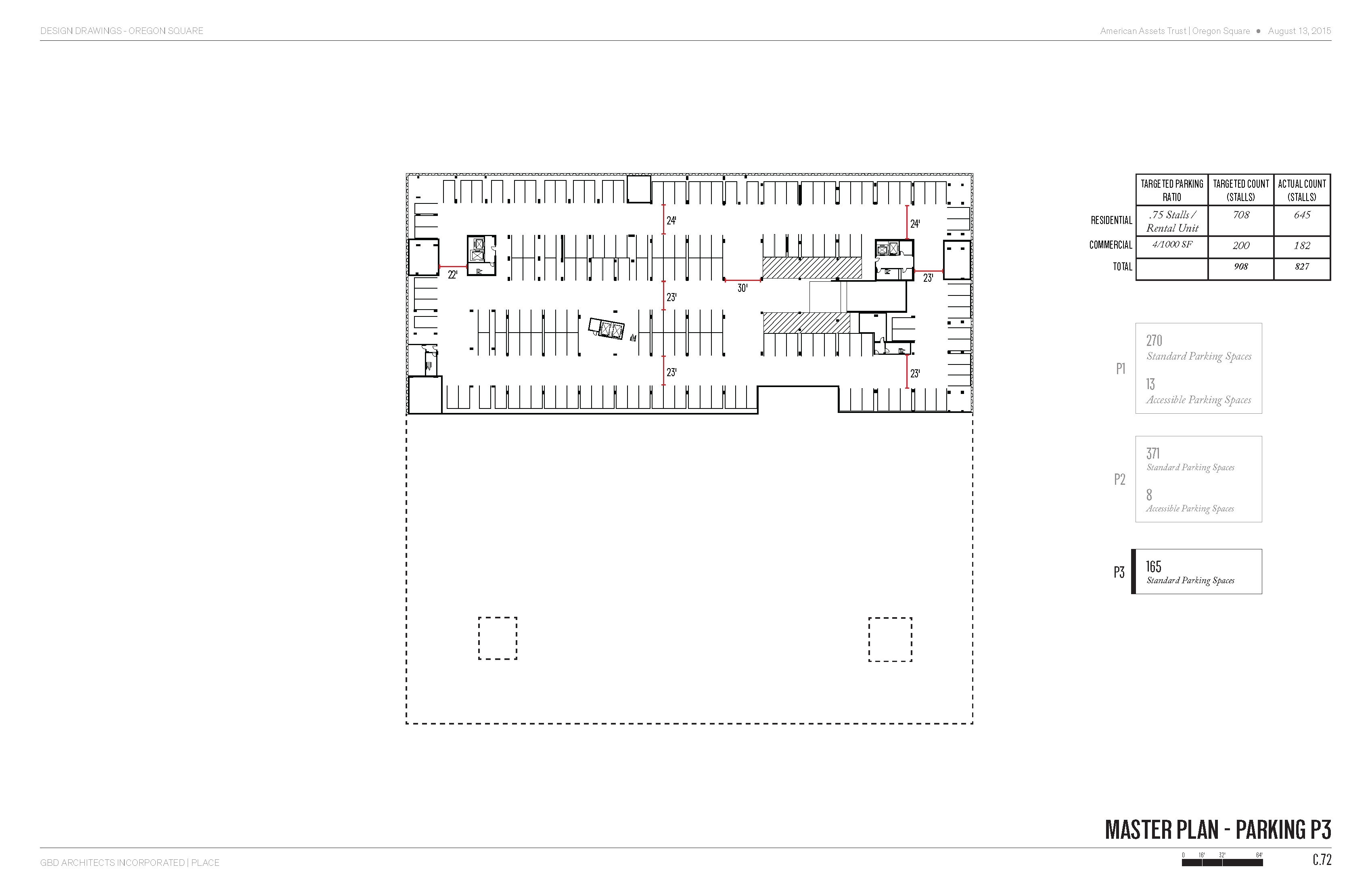
oregon_square_dz1_01_dwg_08 Published August 11, 2015 at 3400 × 2200 in UPDATED: Design Commission reviews Oregon Square (images) ← Previous Next → Plan – Parking P3