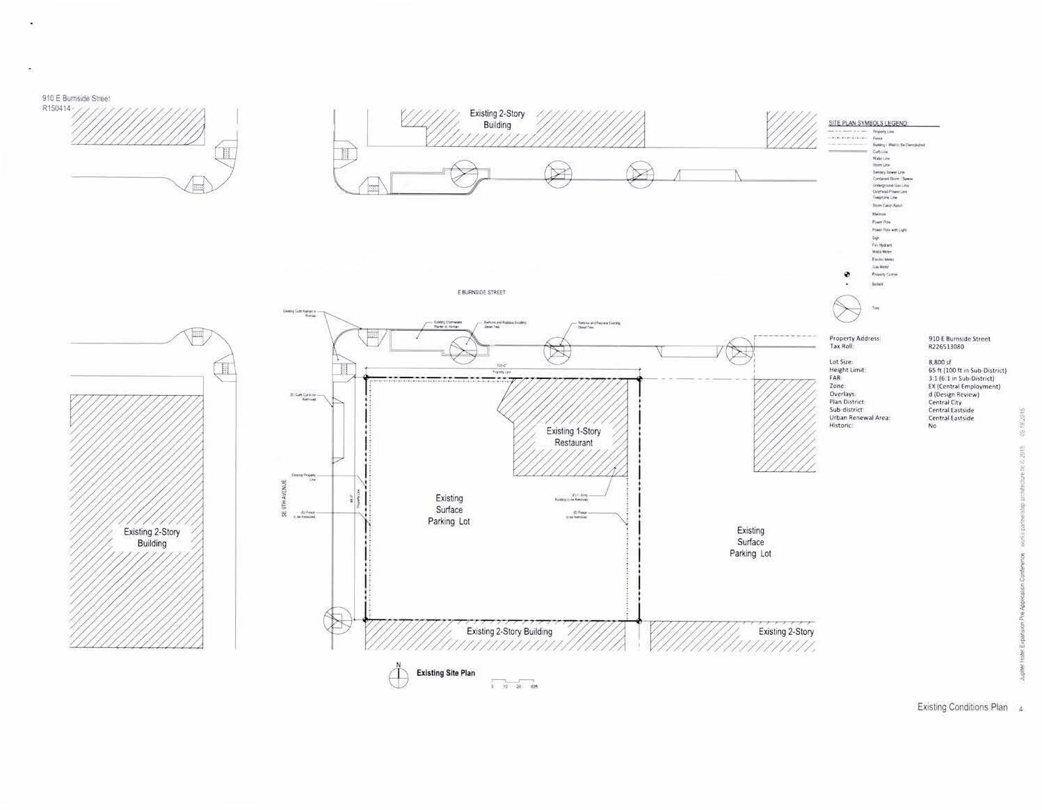
Published October 13, 2015 at 1498 × 1165 in New Hotel Planned for E Burnside and SE 9th Ave ← Previous Next → Plan – Site (Existing)