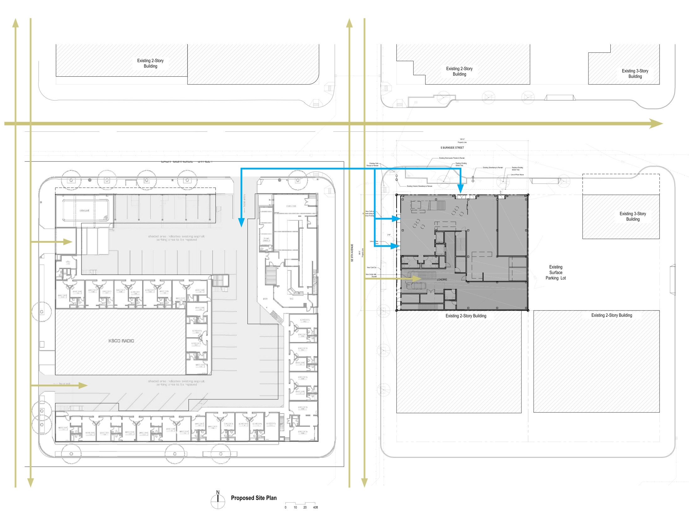
Published November 29, 2015 at 2200 × 1700 in Expansion of Jupiter Hotel goes before Design Commission for advice (images) ← Previous Next → Plan – Site