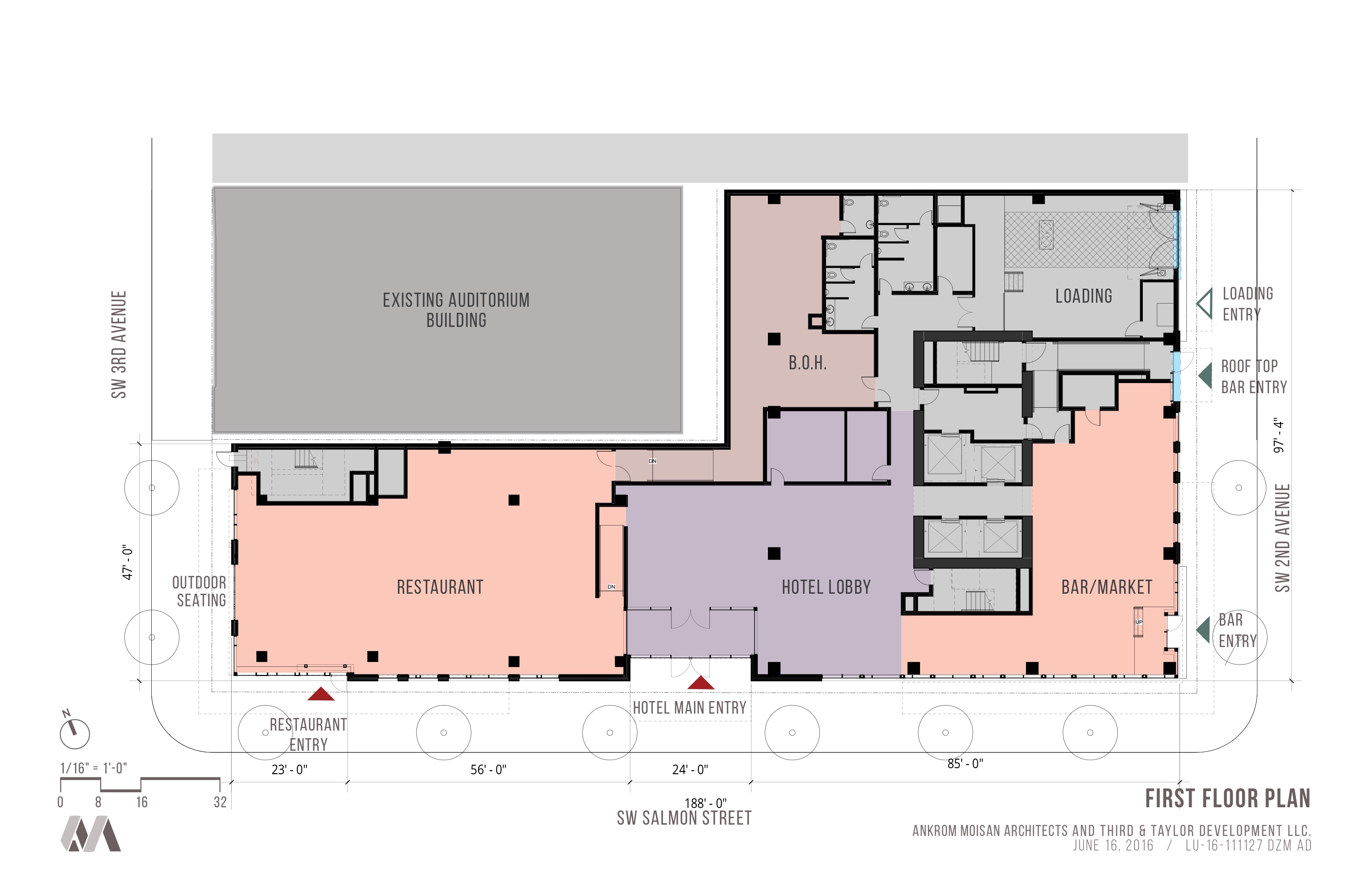
Published June 22, 2016 at 3400 × 2200 in 3rd & Salmon hotel has second Design Review hearing (images) ← Previous Plan – First