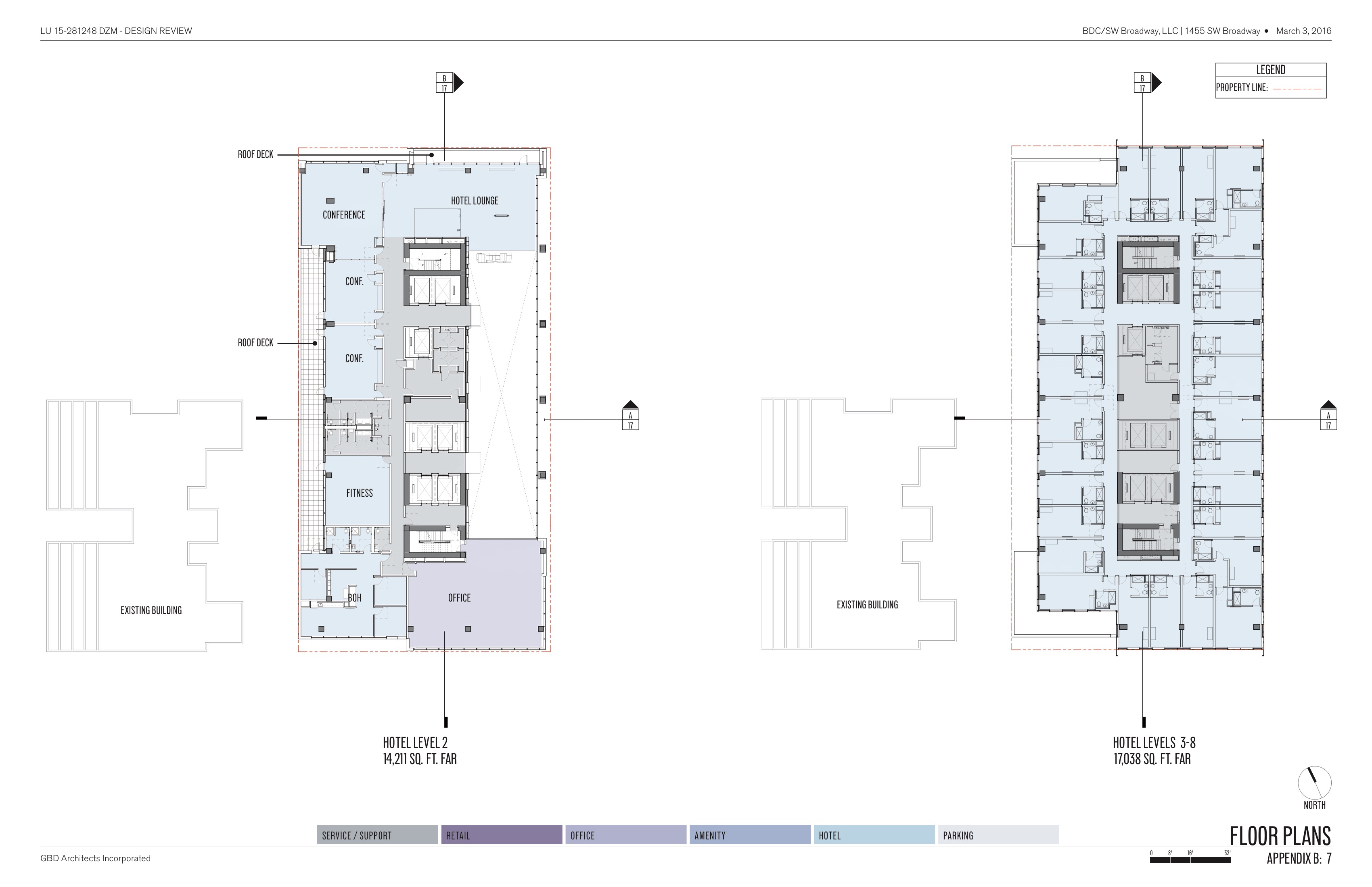
Published March 24, 2016 at 3400 × 2200 in Under Construction: Broadway Tower (images) ← Previous Next → Plan – Levels 2 & 3-8