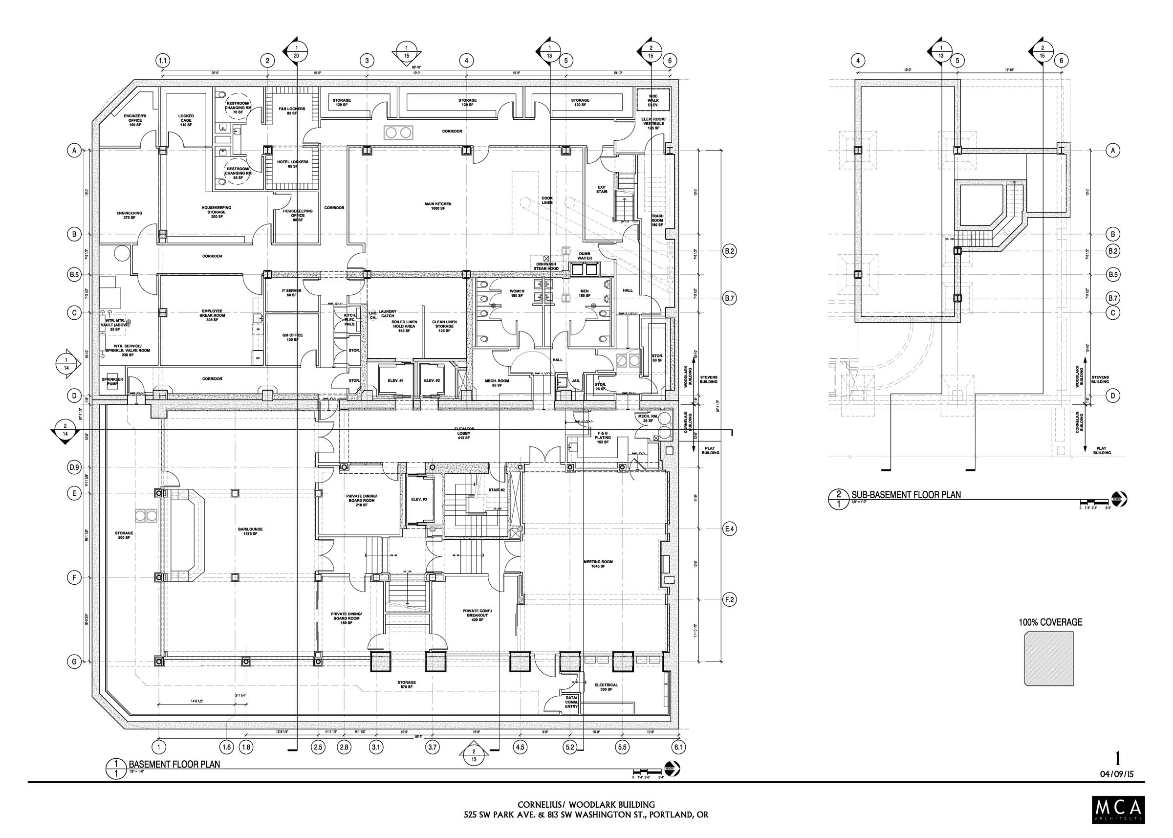
Published August 5, 2015 at 2400 × 1714 in Under Construction: The Woodlark Hotel (images) ← Previous Next → Plan – Basement