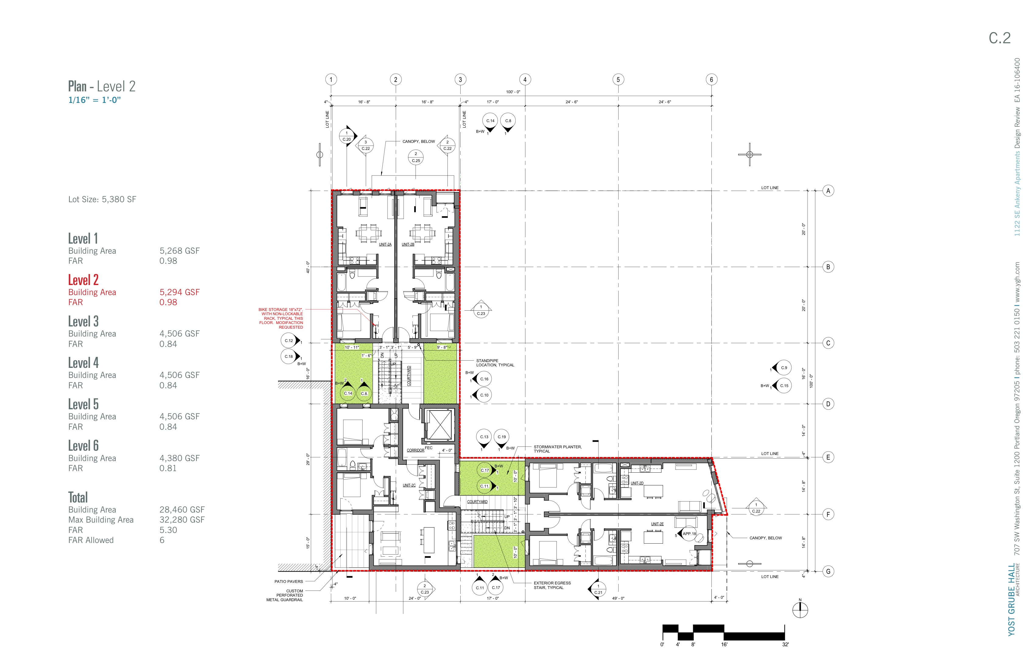
Published October 25, 2016 at 3400 × 2200 in Net-zero Ankeny Apartments reviewed by Design Commission (images) ← Previous Next → Plan – Level 2