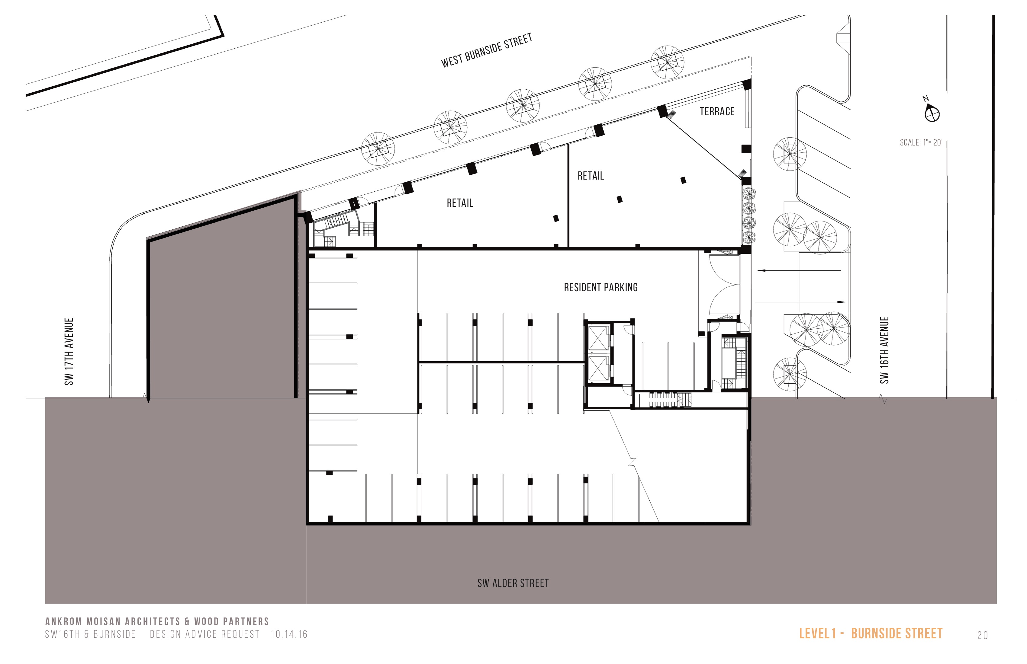
Published December 12, 2016 at 3400 × 2200 in Design Advice Offered for 1638 W Burnside (images) ← Previous Next → Plan – Level 1 (Burnside)