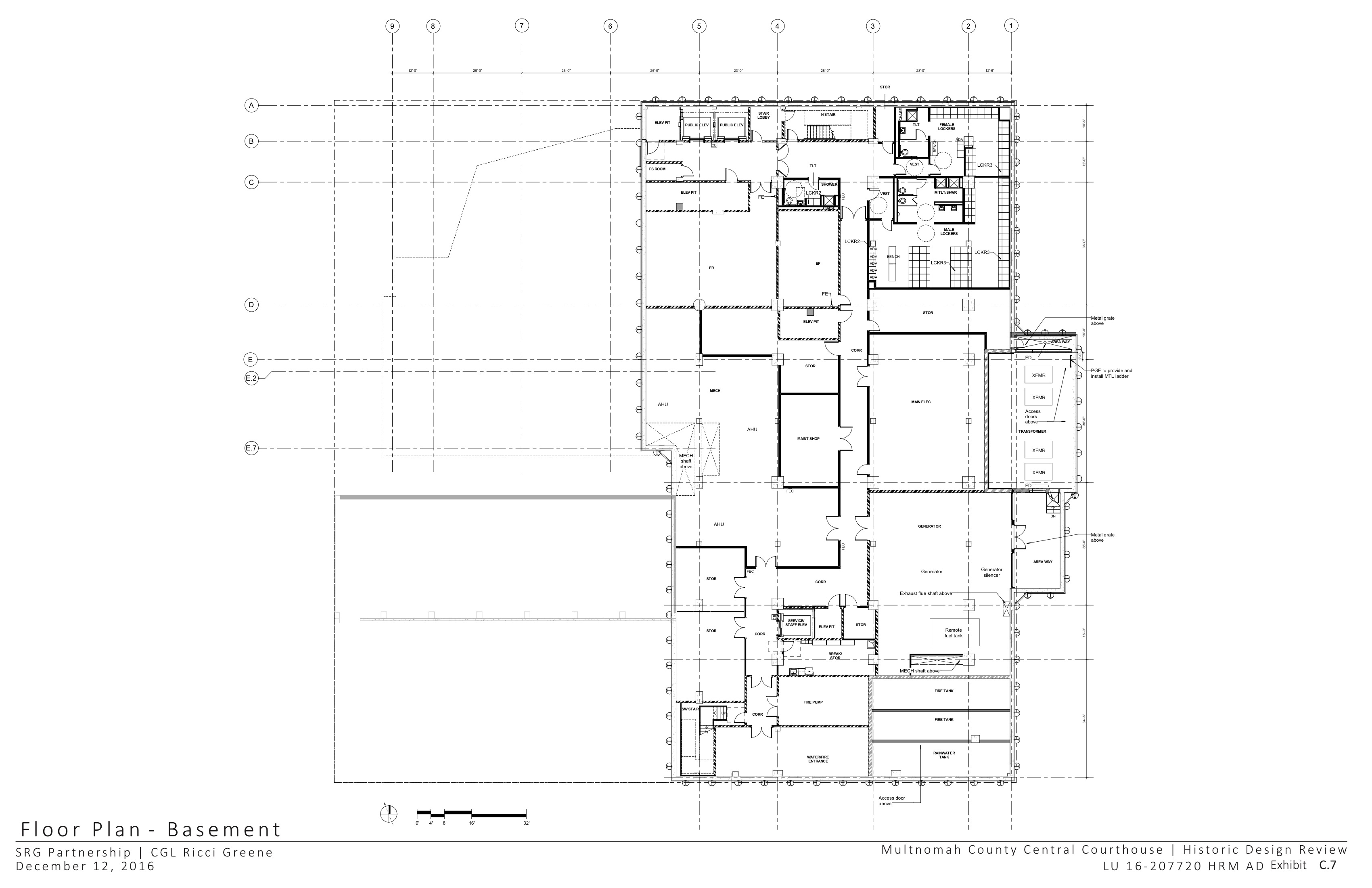
Published January 6, 2017 at 3400 × 2200 in Landmarks Commission approves Multnomah County Central Courthouse (images) ← Previous Next → Plan – Basement