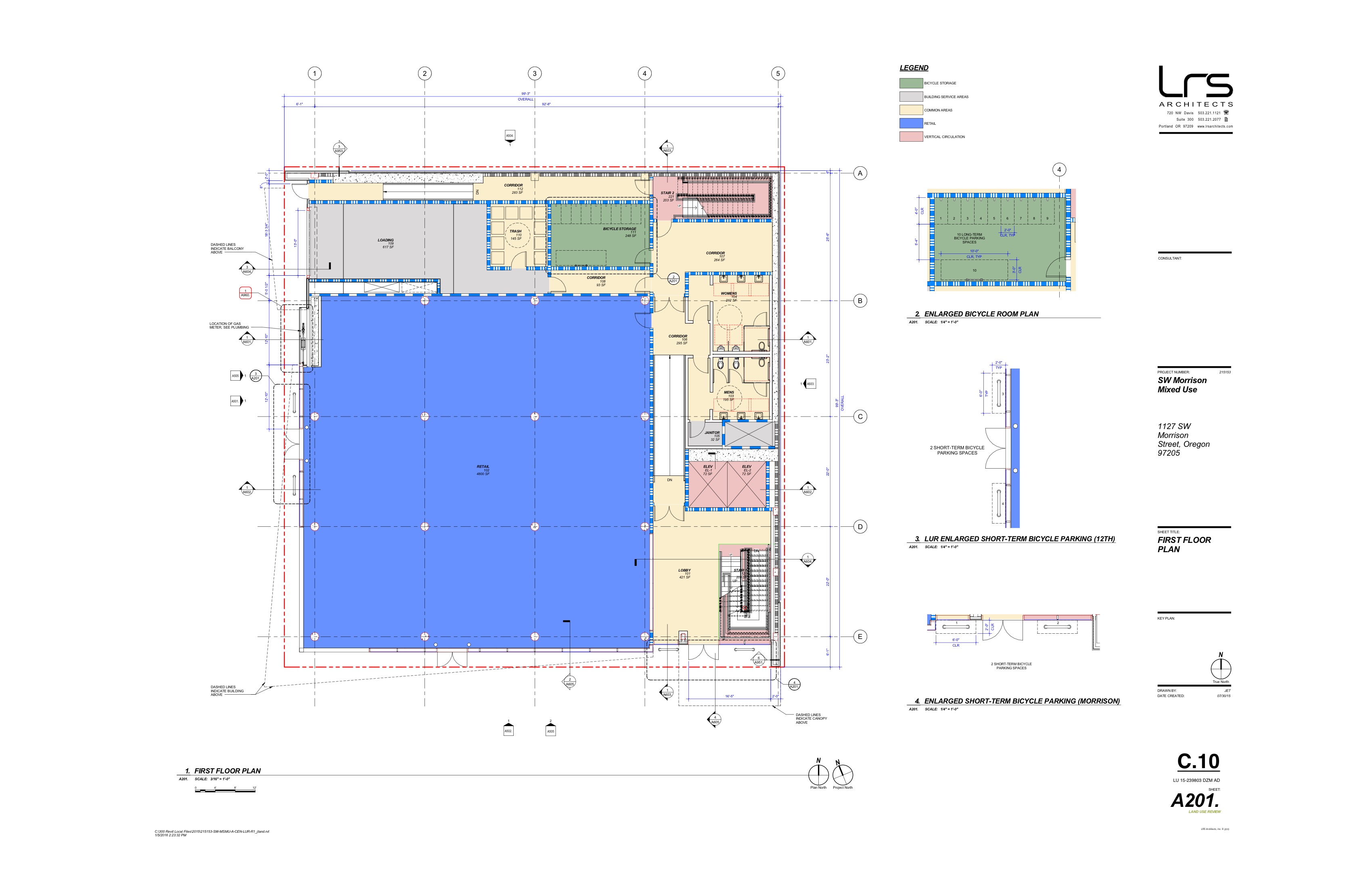
Published January 29, 2016 at 3400 × 2200 in Under Construction: SW 12th & Morrison Office Building (images) ← Previous Next → Plan – Ground