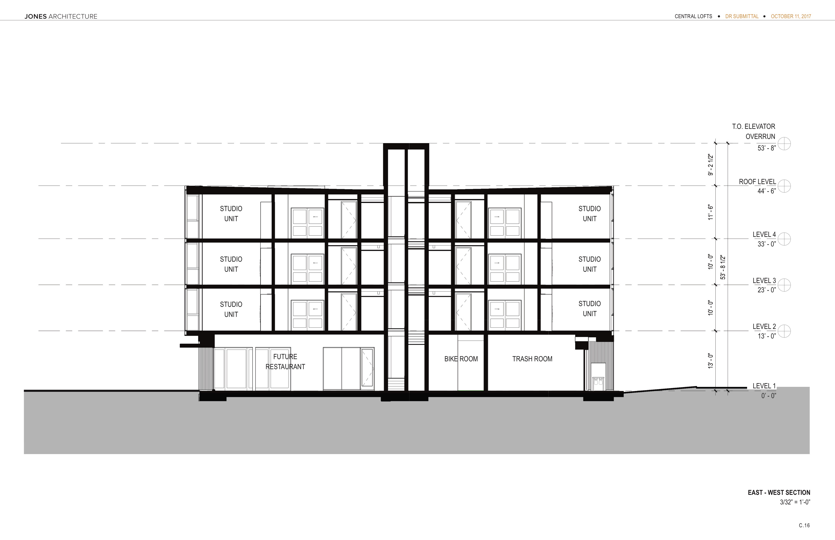
Published April 16, 2018 at 3400 × 2200 in Design Commission Upholds Approval of St Johns Central Lofts (images) ← Previous Next → Section