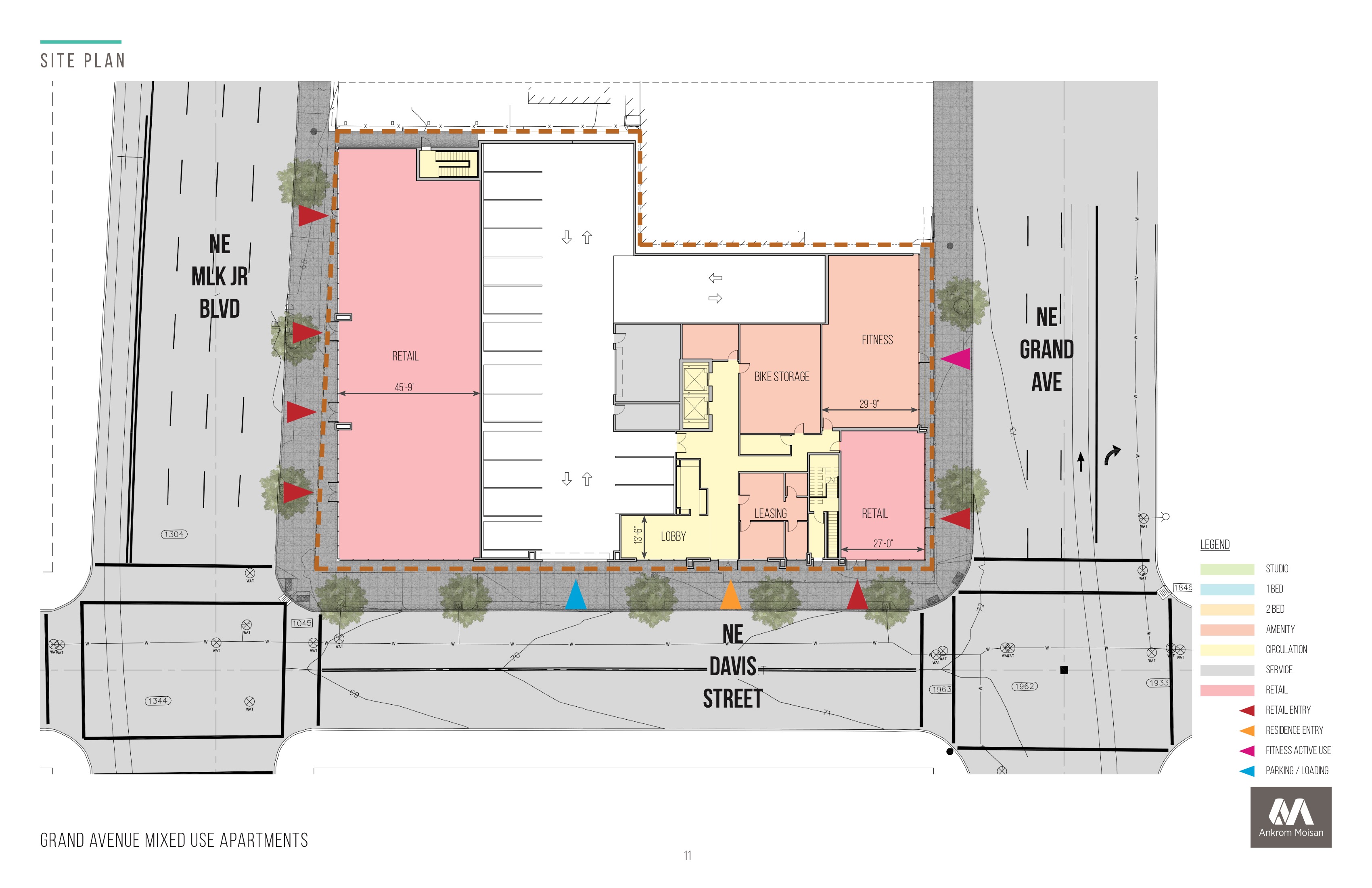
Published October 16, 2018 at 3400 × 2200 in Grand Avenue Mixed Use Apartments go in front of Design Commission (images) ← Previous Next → DAR # 1 | Plan | Site