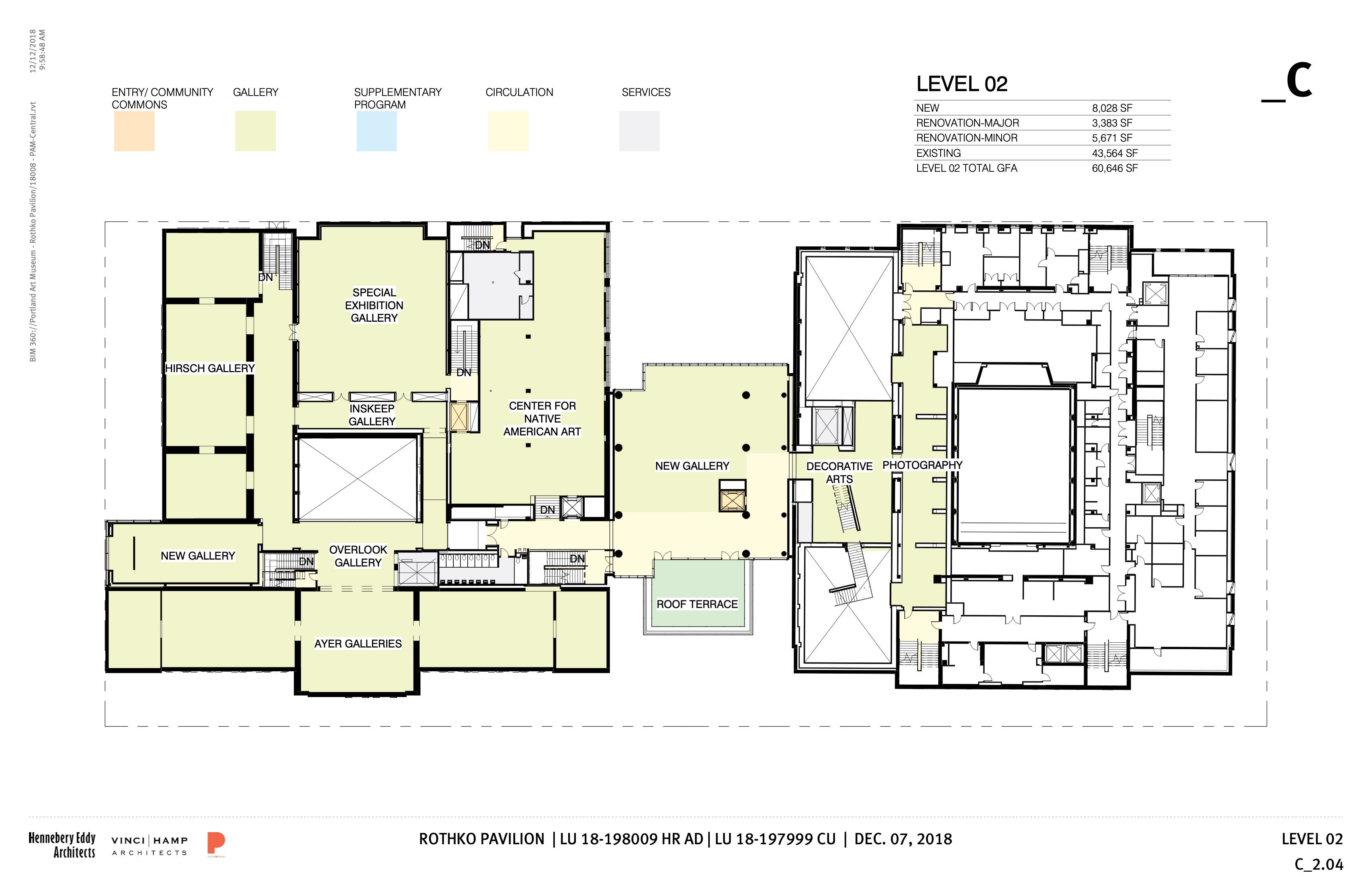
Published February 21, 2019 at 3400 × 2200 in Rothko Pavilion Receives Design Advice (images) ← Previous Next → Plan | Level 02