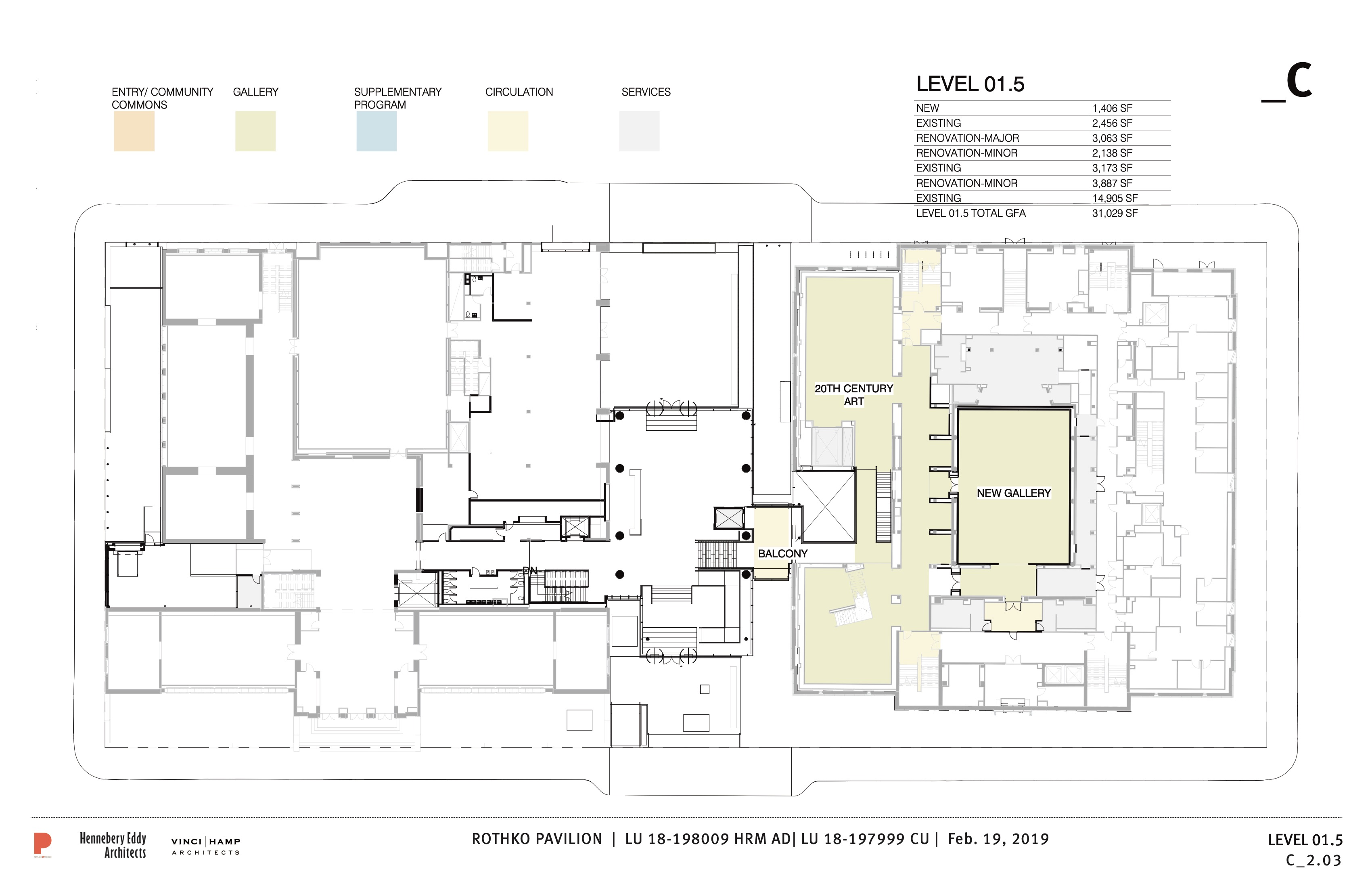
Published May 17, 2019 at 3400 × 2200 in Portland Art Museum Rothko Pavilion Approved (images) ← Previous Next → Plan | Level 01.5