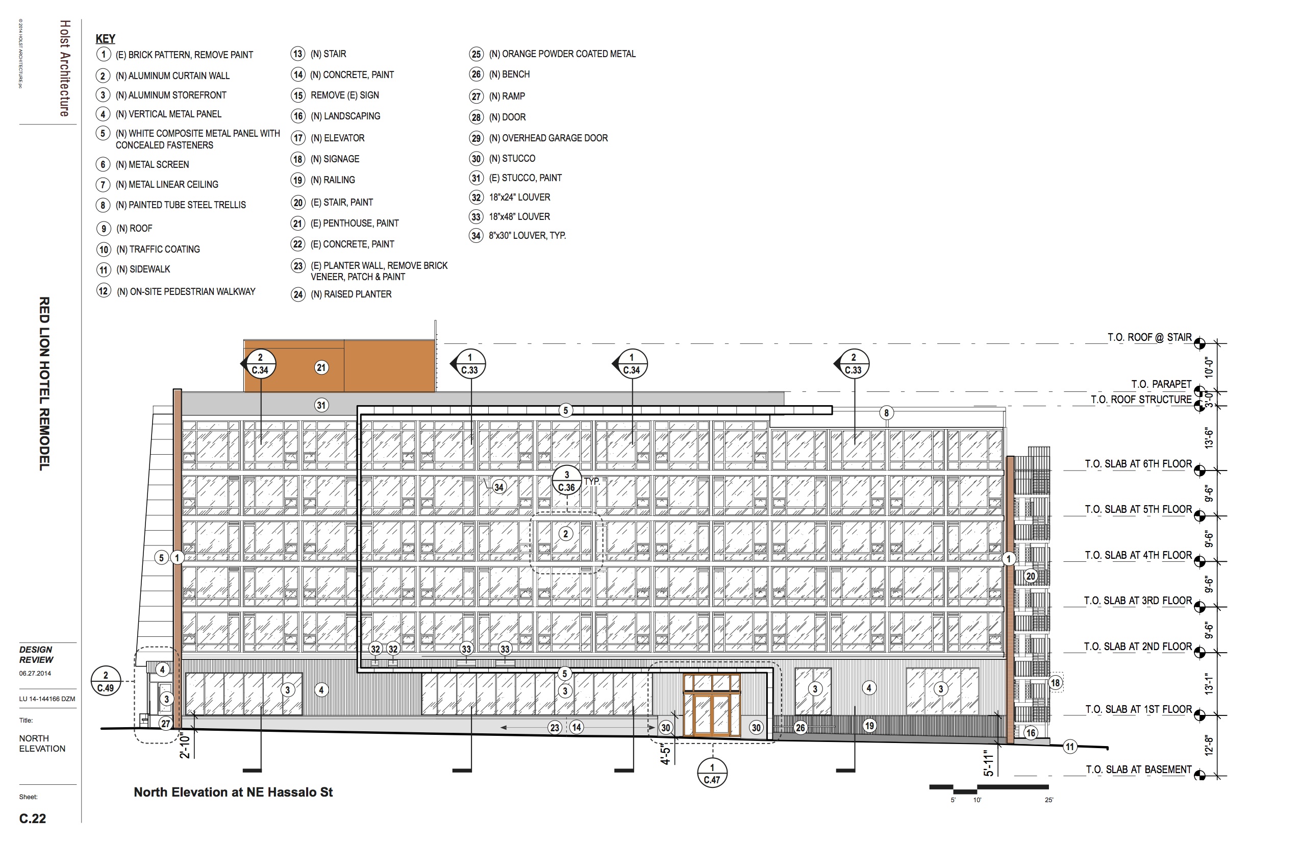
Published December 10, 2014 at 2550 × 1650 in Former Red Lion transforming into the Hotel Eastlund (images) ← Previous Next → Elevation – North