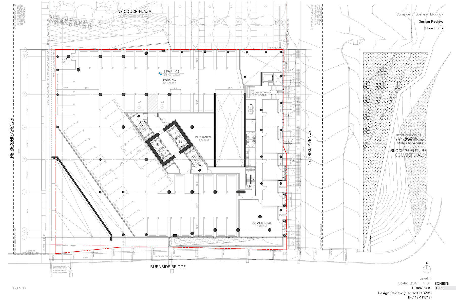
Published February 5, 2015 at 1800 × 1200 in Burnside Bridgehead, Pt II: Block 67 (Images) ← Previous Next → Plan – Level 04