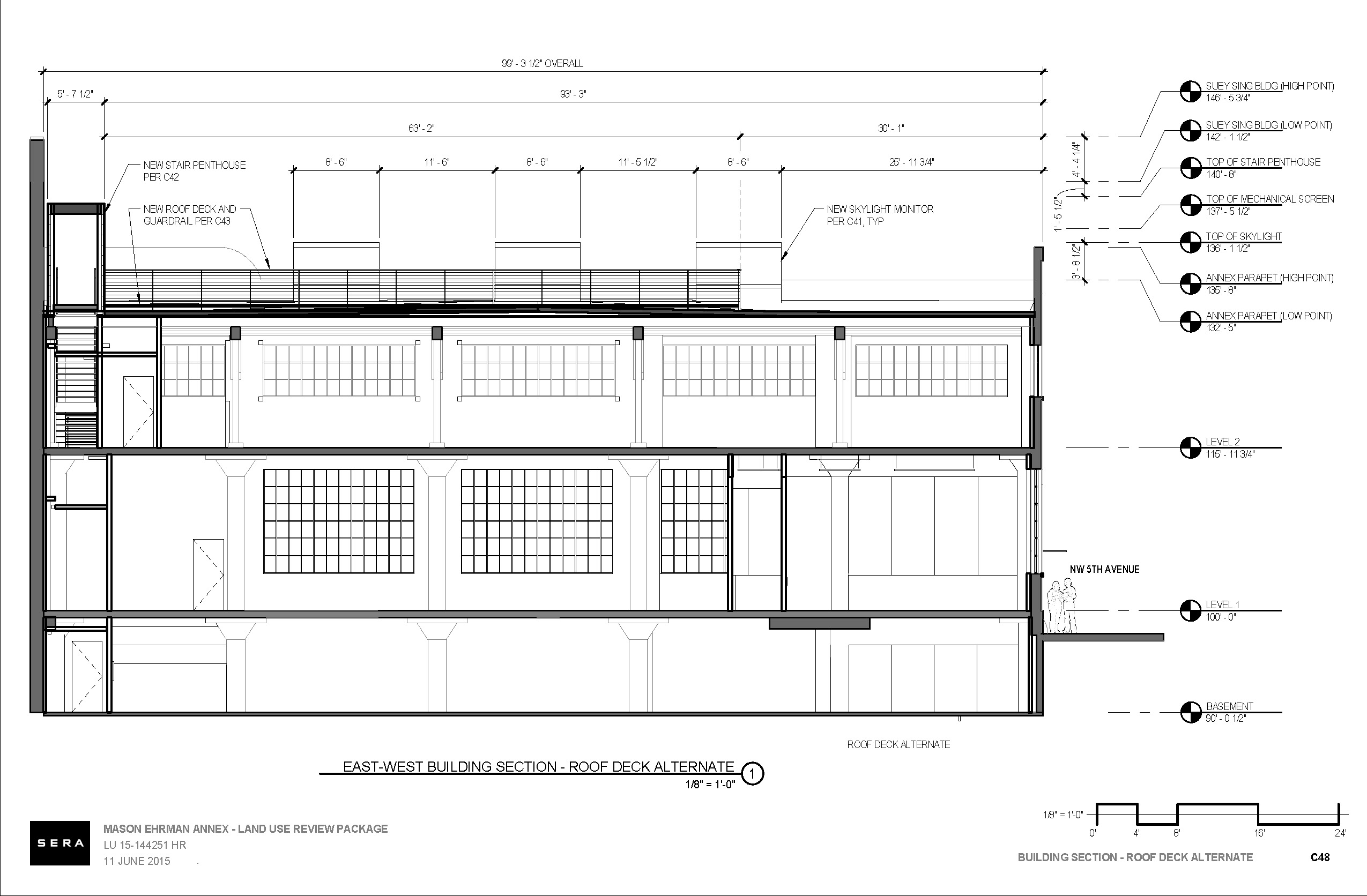
Published July 14, 2015 at 2550 × 1672 in Landmarks Commission approves Mason Ehrman Building Annex renovations (images) ← Previous Section – East/West (Roof Deck Alternate)