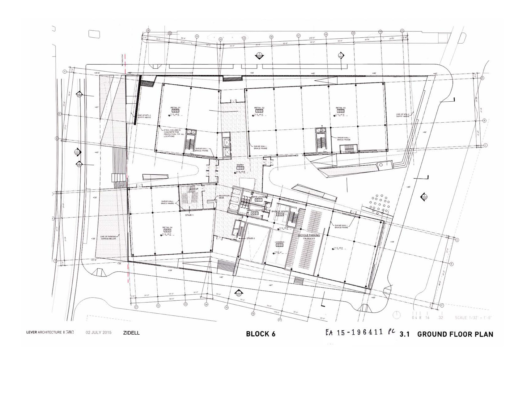
Published July 23, 2015 at 1650 × 1275 in Zidell moving forward with two offices buildings ← Previous Next → Block 6 – Plan – Ground