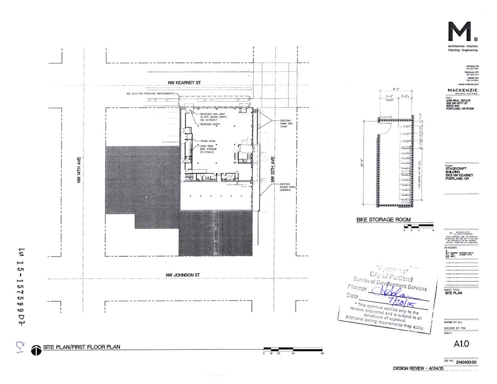
Published July 29, 2015 at 1650 × 1275 in Renovation of the Stagecraft Building in the Pearl approved ← Previous Next → Plan – Site