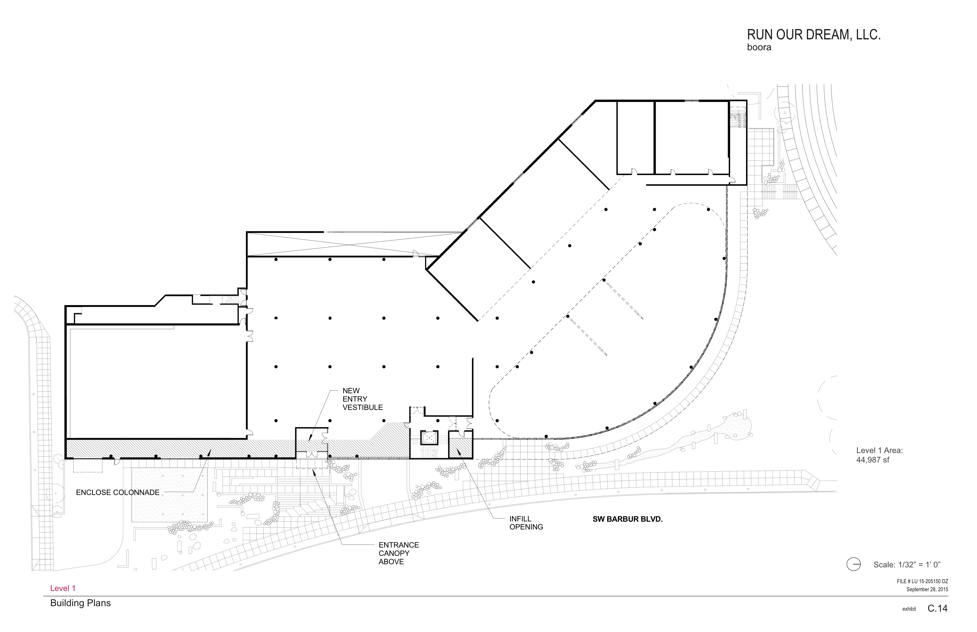
Published October 24, 2015 at 3400 × 2200 in Design Commission approves renovation of Metro Family YMCA for Under Armour (images) ← Previous Next → Plan – Level 1