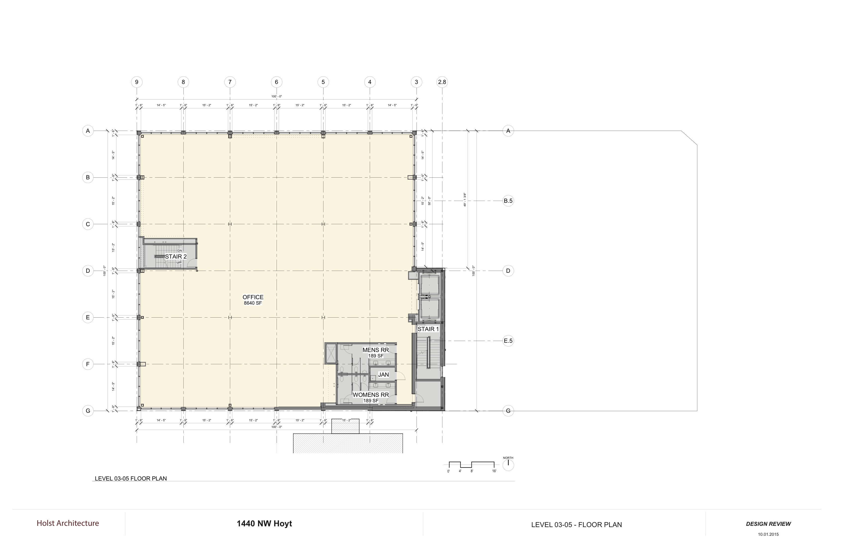
Published October 29, 2015 at 3400 × 2200 in 1440 Hoyt to add 4 stories to former Premier Press building (images) ← Previous Next → Plan – Level 03 to 05