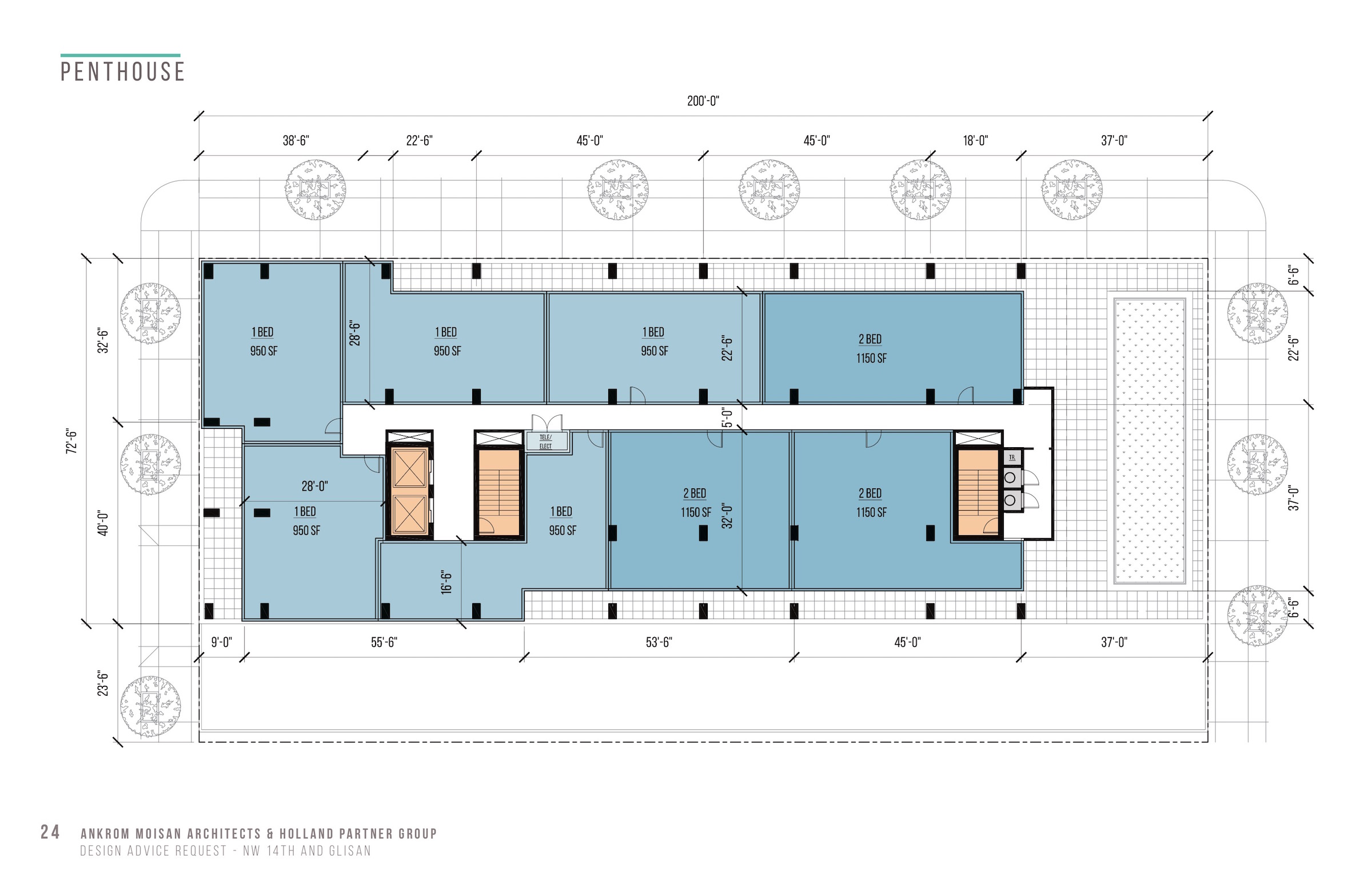
Published January 12, 2016 at 2400 × 1553 in Tower at 14th & Glisan receives Design Advice (images) ← Previous Next → Plan – Penthouse