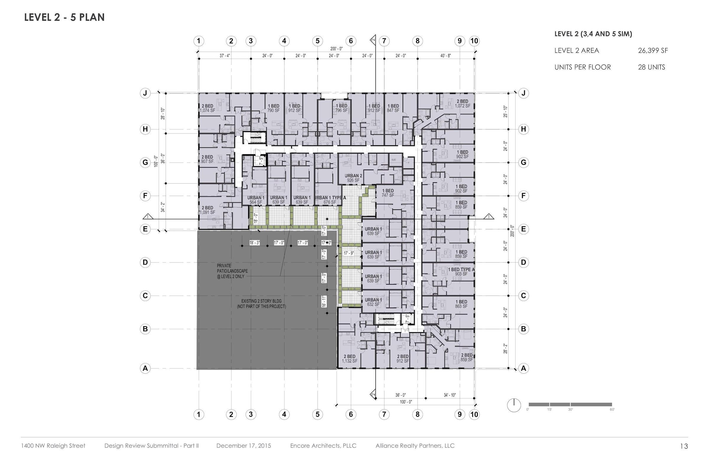
Published January 11, 2016 at 2400 × 1553 in Design Commission approves 1400 Raleigh (images) ← Previous Next → Plan – Levels 2 to 5