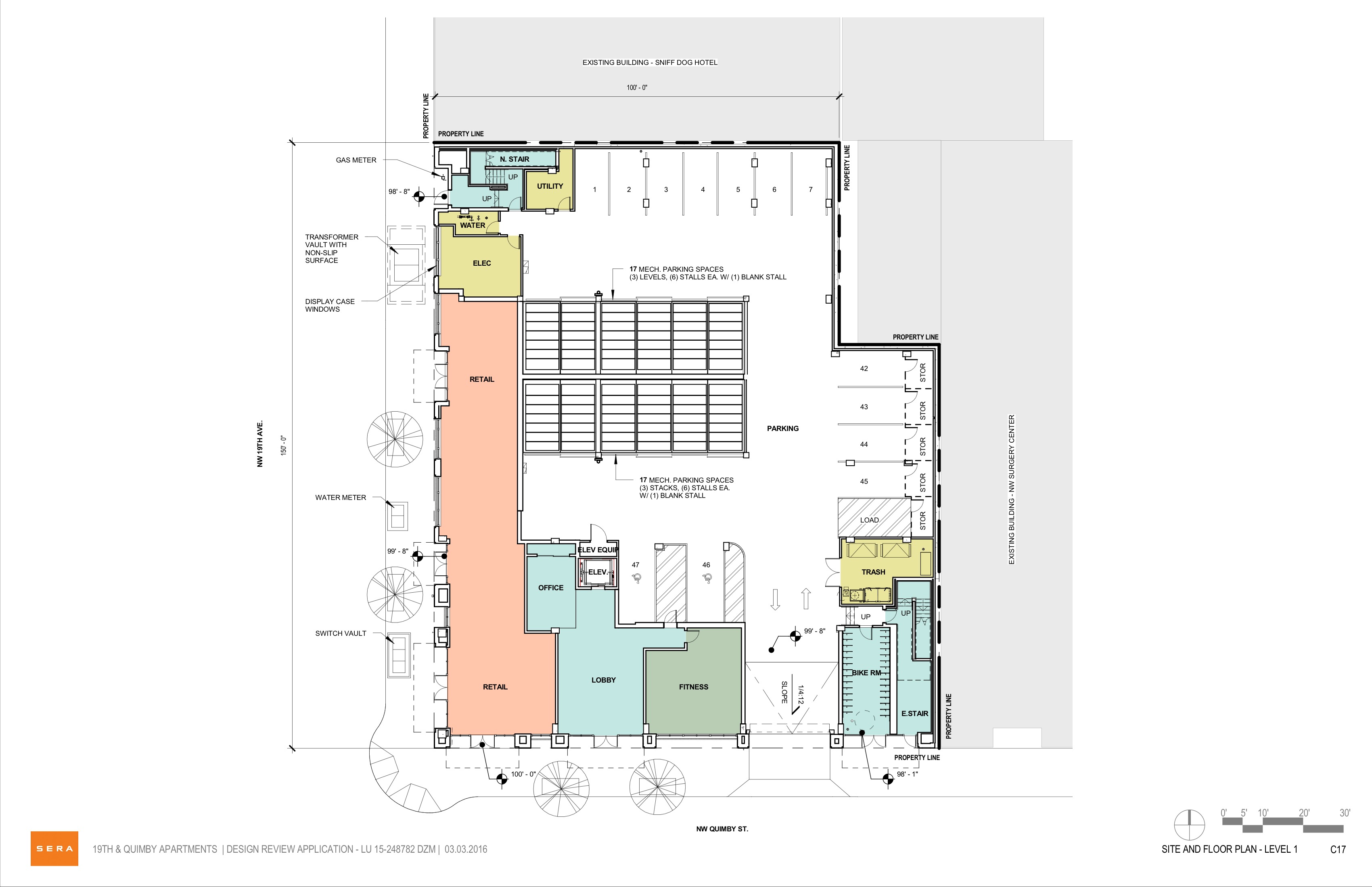
Published March 6, 2016 at 3400 × 2200 in Design Commission approves apartment building at NW 19th & Quimby (images) ← Previous Next → Plan – Level 1