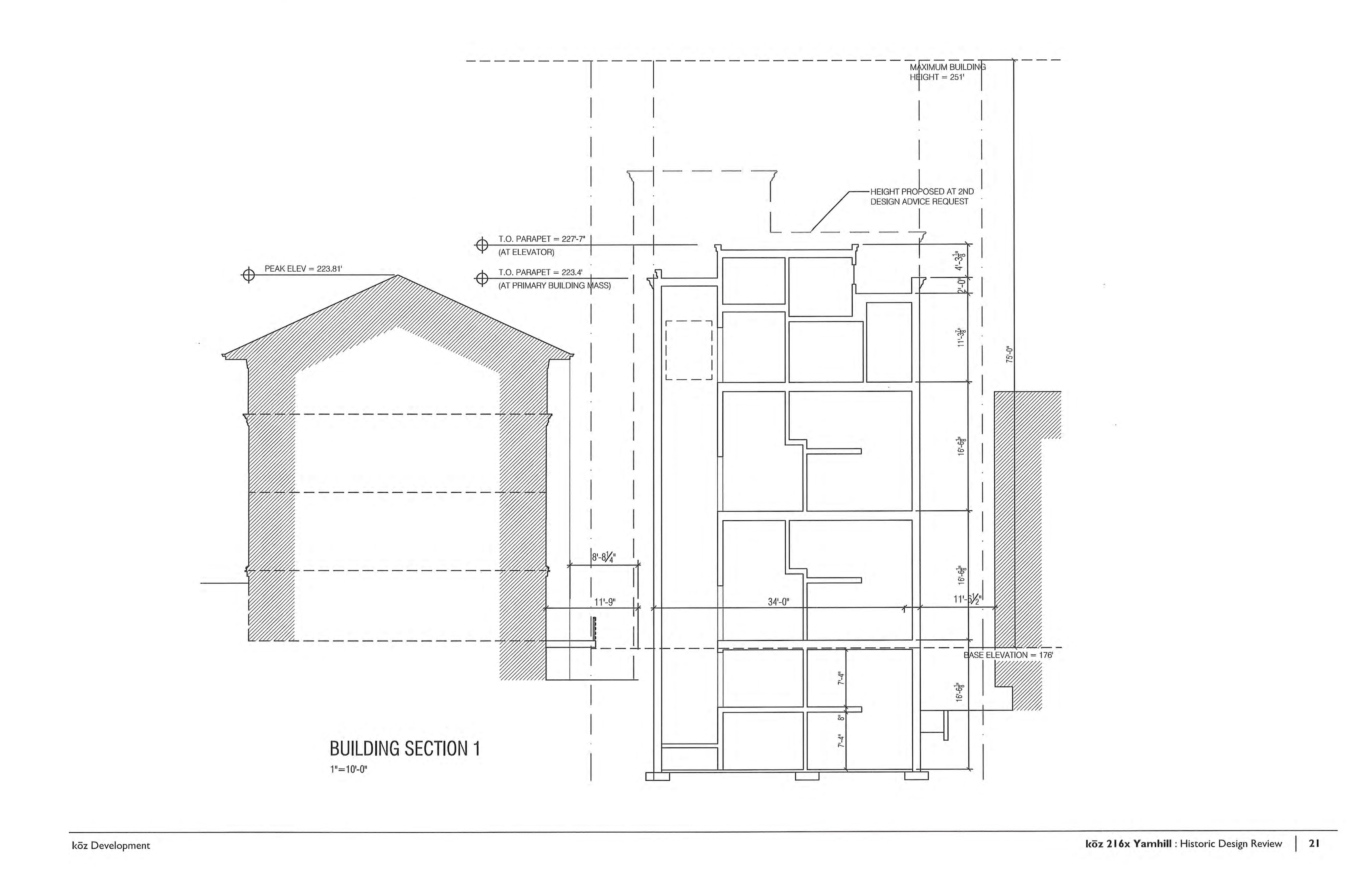
Published May 5, 2016 at 3400 × 2200 in SW Yamhill Apartments approved by Landmarks Commission (images) ← Previous Next → Sections