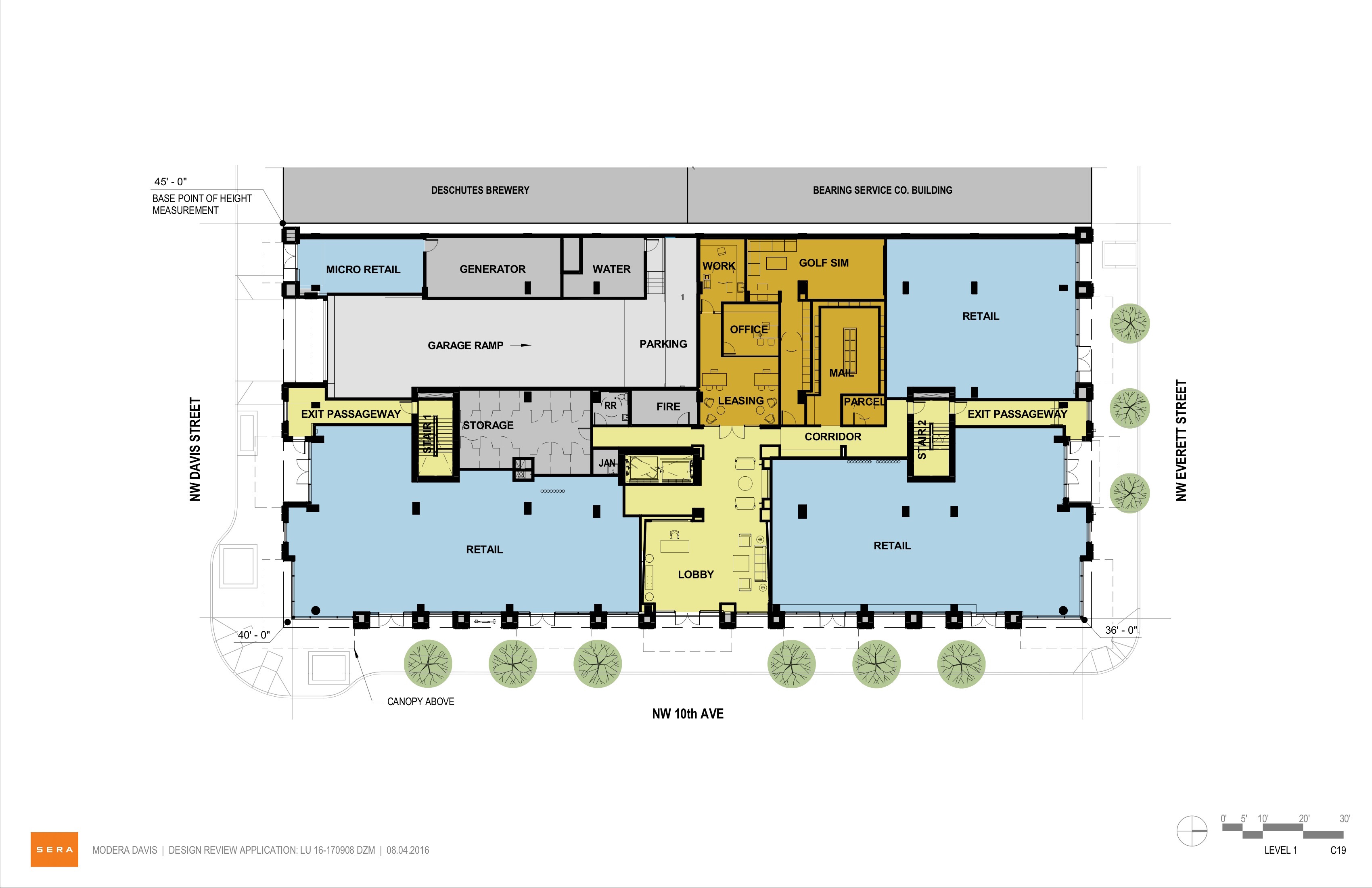
Published August 17, 2016 at 3400 × 2200 in Design Commission reviews Modera Davis (images) ← Previous Next → Plan – Level 1