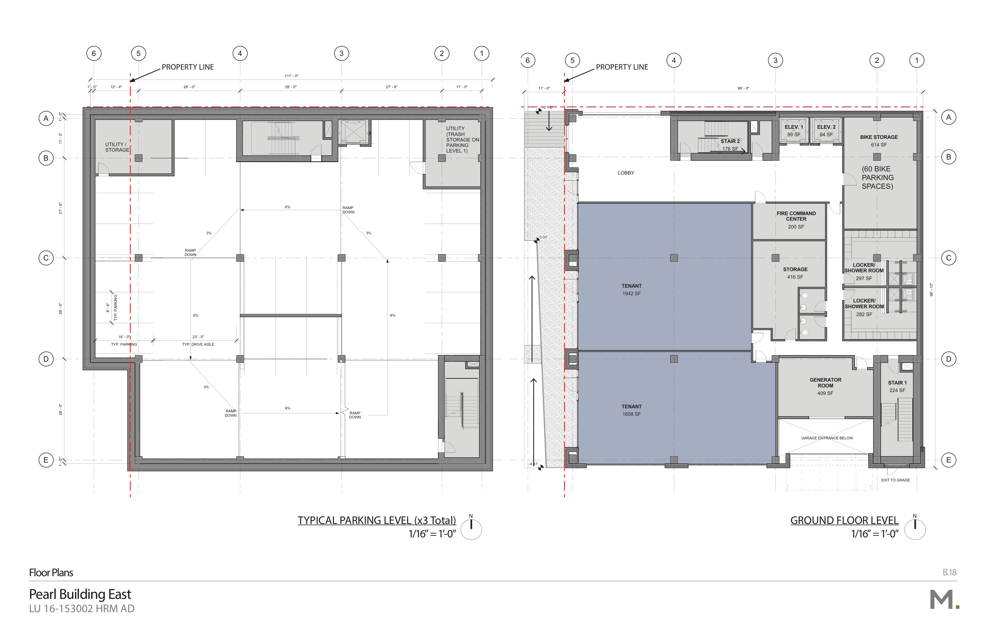
Published March 23, 2017 at 3400 × 2200 in Pearl Building East approved by Landmarks Commission (images) ← Previous Next → Plans – Parking & Ground