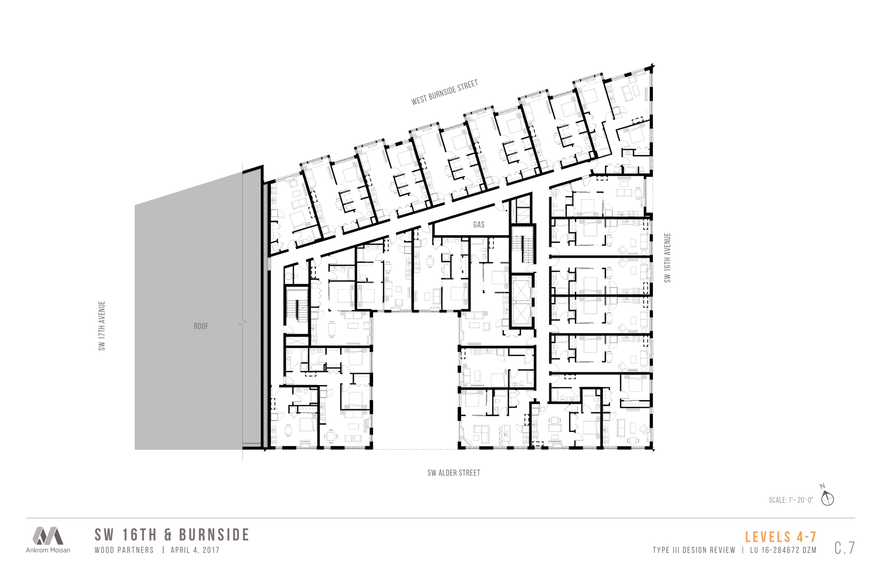
Published May 10, 2017 at 3400 × 2200 in 1638 W Burnside approved by Design Commission (images) ← Previous Next → Plan – Levels 4 to 7