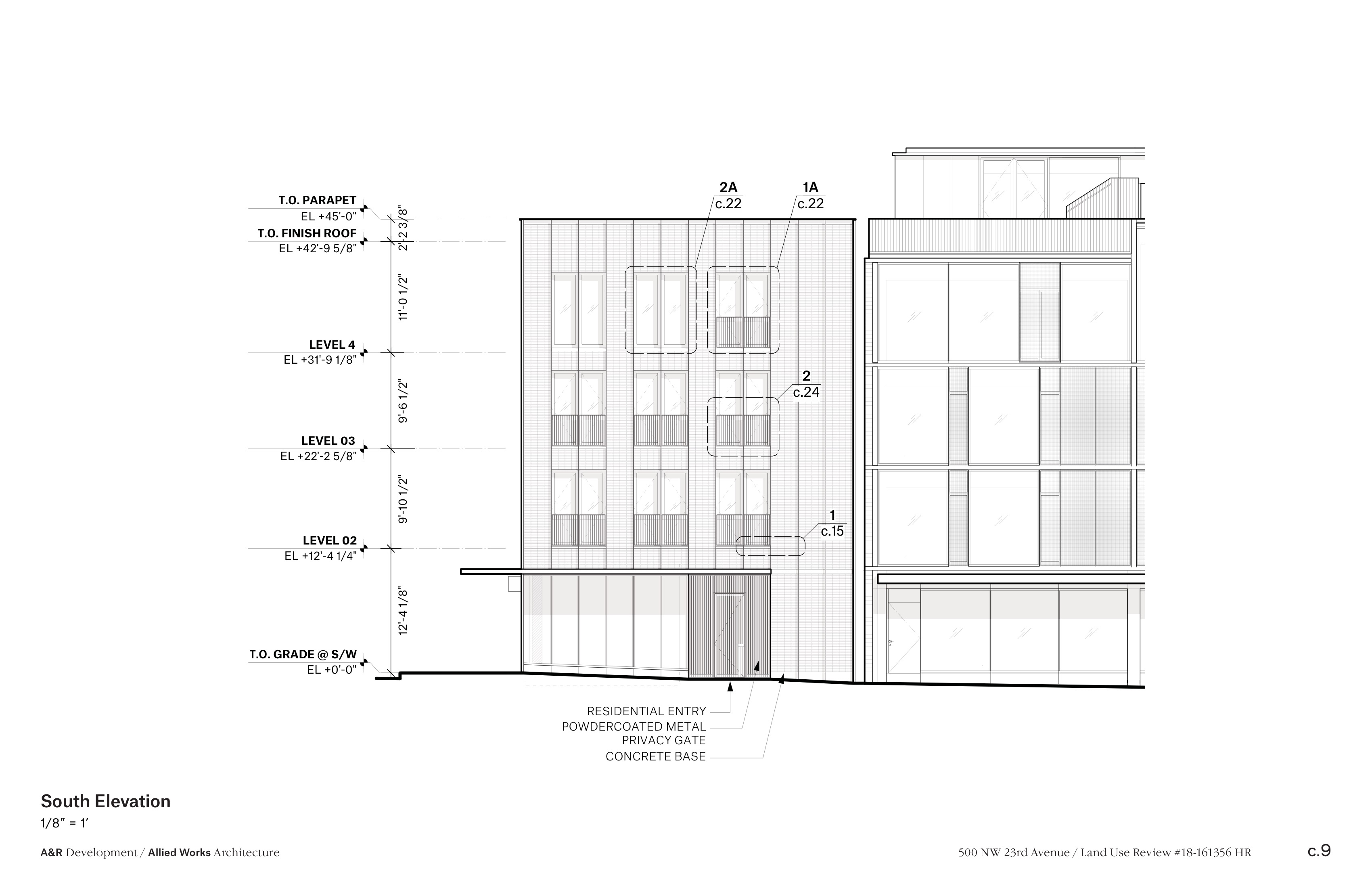
Published August 10, 2018 at 3400 × 2200 in 500 NW 23rd Ave Approved by Landmarks Commission (images) ← Previous Next → Elevation | South (NW Glisan St)