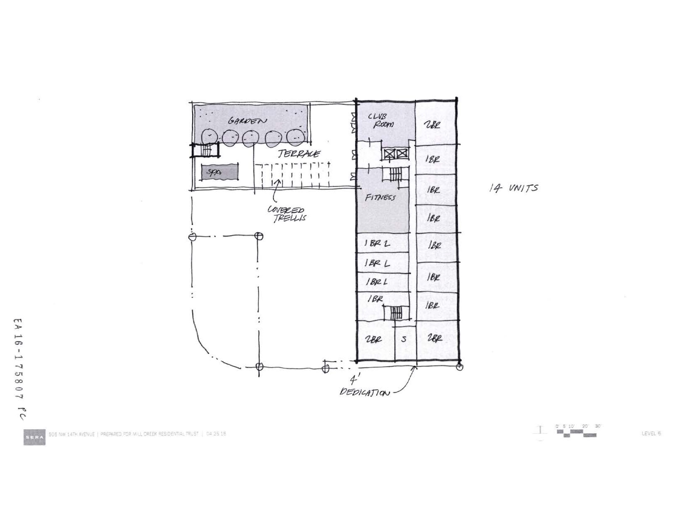
Published May 30, 2016 at 2200 × 1700 in Revised proposal for 505 NW 14th Ave keeps historic Fire Station #3 (images) ← Previous Next → Plan – Level 6