Construction is in progress on the Schnitzer School of Art + Art History + Design at Portland State University. Located at the southern end of the South Park Blocks in Downtown Portland, and designed by LEVER Architecture, this 4-story academic building will include 100,000 square feet of classrooms, studios, galleries, faculty offices, labs, commons areas, and support spaces.

The School of Art + Art History + Design will be located at 1914 SW Park Ave, between Shattuck Hall and the Native American Student and Community Center. The site is bounded by SW Park Ave, SW Jackson St, SW Broadway, and a Green Loop path. Most recently, the site was used as a surface parking lot and skate park. The Art, Art History, and Design programs are currently located in several locations across campus, and this project will bring them under one roof.
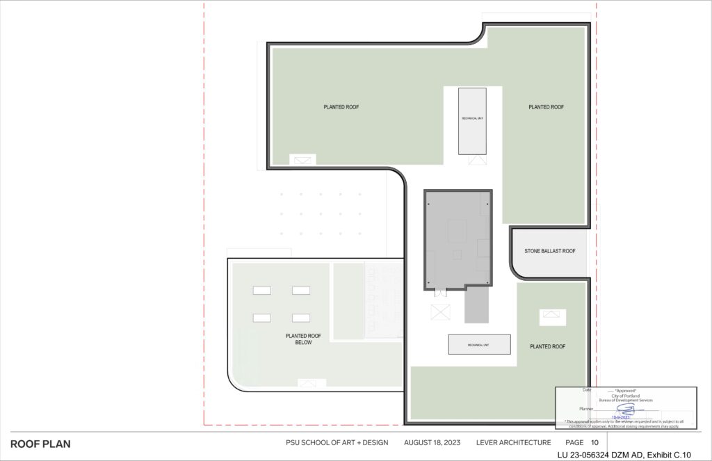
The massing of the U-shaped building steps down at its south side to respond to the Native American Student and Community Center.

The project will include ground floor interaction with public realm spaces on all four sides. There will be an outdoor work yard space facing the South Park Blocks.



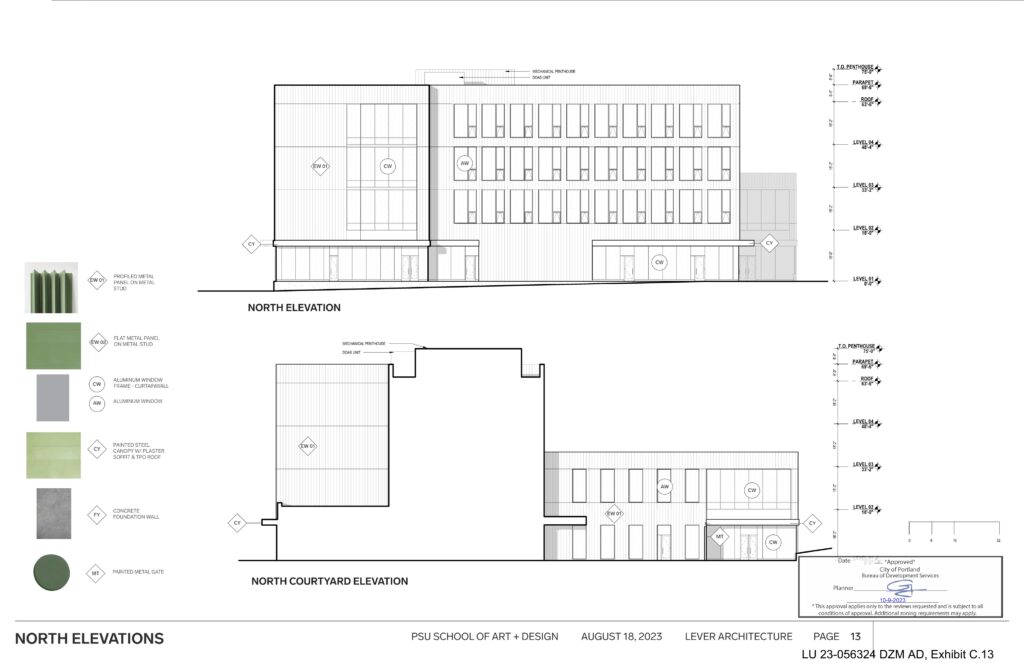
To the north side of the building, the Green Loop path will provide multi-modal and pedestrian paths through a linear park. On that side, there will be an Art Porch to provide outdoor space for studio and classroom activities. At the corner of SW Broadway and the Green Loop there will be Art & Design galleries.





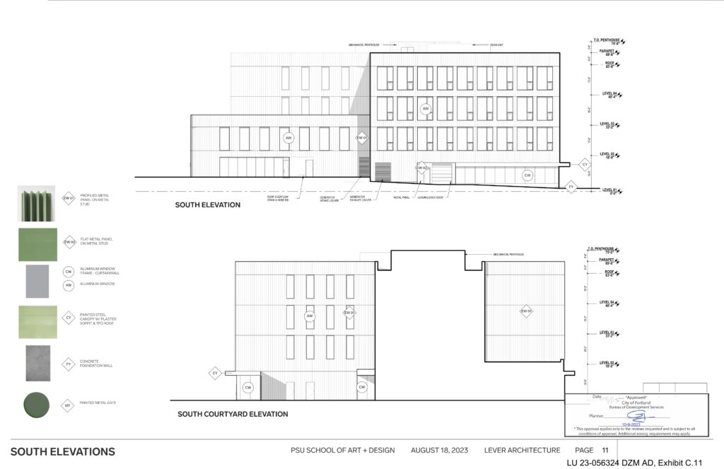
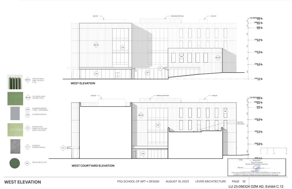
The building will have a mass timber structure with a forest-green ribbed metal facade, aluminum and glass windows, aluminum and glass curtain walls, concrete floors, and felt acoustic panels. The design includes 28 indoor bicycle parking spaces, 16 outdoor bicycle parking spaces distributed between SW Park Ave and SW Broadway, and one loading space on SW Jackson St.




The Schnitzer School of Art + Art History + Design received Design Commission approval on October 5, 2023. The decision and supporting materials can be found here. A building permit was issued on September 9, 2024.
Staff found this proposal will contribute to and enhance its unique setting at the terminus of the South Park Blocks and along the future Green Loop. The building and site design respond well to the unique conditions of the four frontages, and the program has been leveraged to activate the pedestrian areas surrounding the site. The design expresses the vibrancy of the art and design activities it will house. It is coherent, articulated and the quality materials and careful detailing will provide a sense of quality and permanence.
The School of Art + Art History + Design will open in fall 2026.
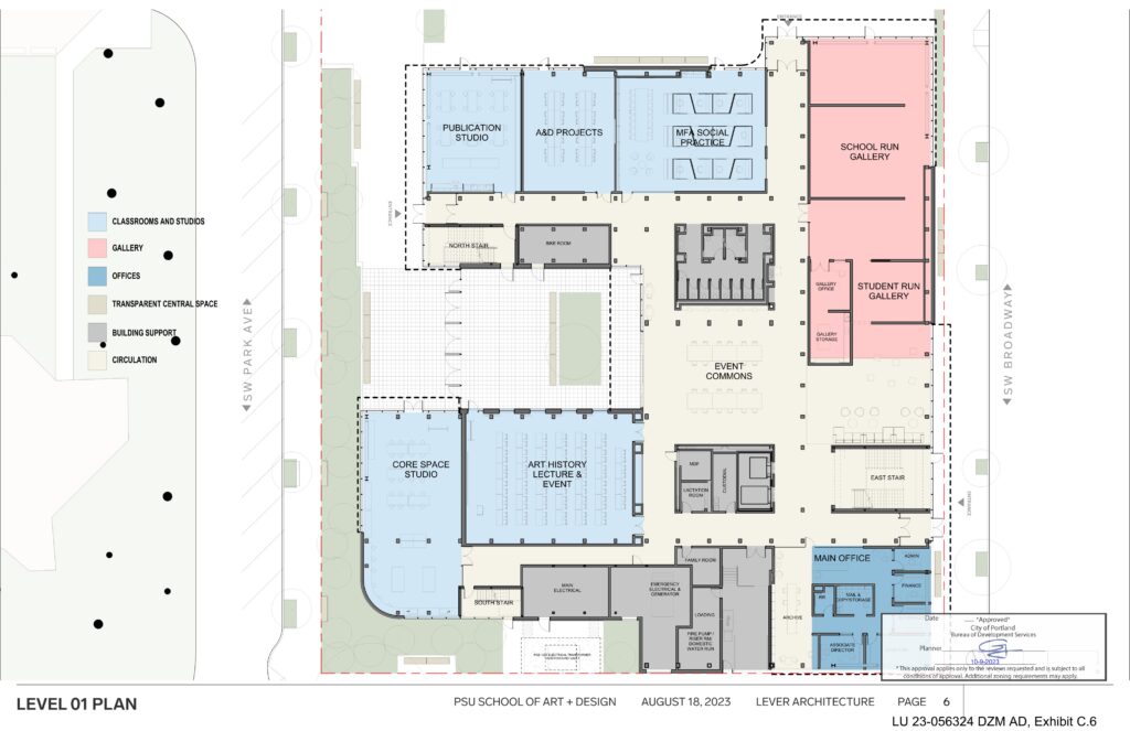
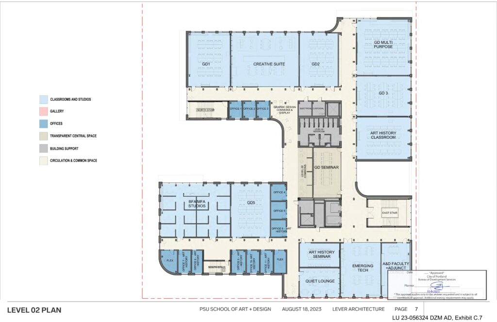
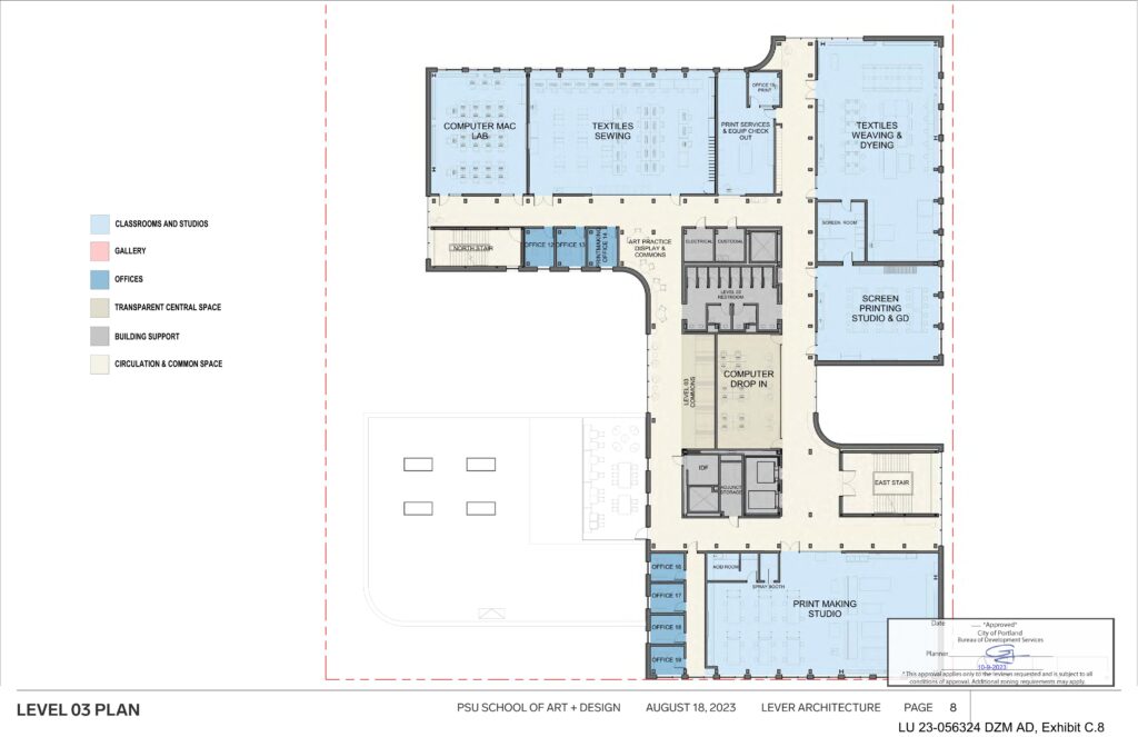
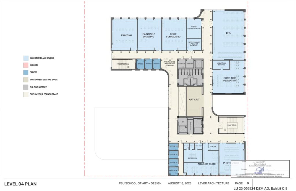
Drawings














