The Portland Design Commission conducted a Design Advice Request meeting on Thursday, Feb. 19, for the Ida B. Wells Modernization. Commissioners reviewed site plan and design alterations for the new Ida B. Wells High School building, which will replace the existing building. Portland Public Schools selected Bora for the building design and site plan and Hoffman Construction as the project’s contractor.

Ida B. Wells High School is located at 1151 SW Vermont St in the Hillsdale neighborhood. The school was targeted for renovation as part of Portland Public Schools’ successful 2025 bond measure aimed at modernizing high schools in the district. The existing high school was built in 1956. Formerly named after Woodrow Wilson, the school was renamed in 2021.
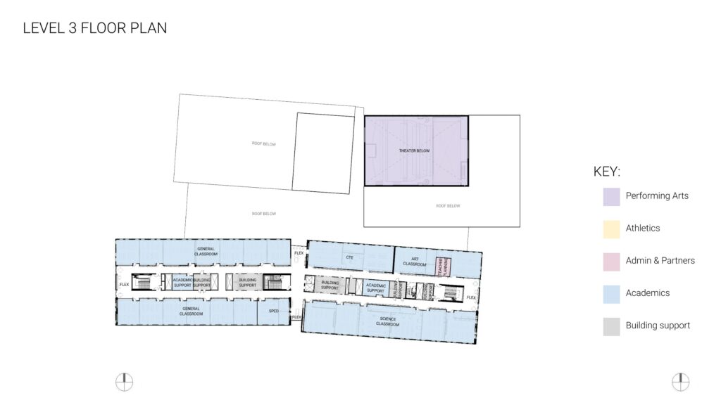
Bora has designed a 295,000-square-foot, four-story building on the portion of the 35.38-acre site currently occupied by Clopton Field, the school’s baseball stadium, and a grass auxiliary field. The old building will be demolished and replaced on site with a new baseball field, four new tennis courts, a north-south pedestrian path across the site and expanded student or staff parking accessible from S.W. Vermont St. Bora’s design incorporates four distinct rectangular masses, clad in thin brick tile in an alternating pattern and glass fiber-reinforced concrete fins, connected by glass curtain walls that mark building entrances.





Bora presented community survey results regarding the exterior facade. Community survey results favored a darker thin brick tile color, and Bora presented commissioners with two options, each with different colors and textures.






Bora presented a new design of the site’s north entrance, off S.W. Capitol Highway. In response to community feedback around size, scale, and pedestrian/bicycle safety of the previously proposed entrance, Bora responded with a design that widened the entrance and widened the crosswalk at the northwest corner of Guardians Field, the multipurpose field that will remain in place, from 10 feet to 20 feet. Large planters at curb height serve to mark crosswalks and pedestrian zones with greater visual interest.
Commissioners and members of the public commented on Rieke Road, which separates Ida B. Wells High School and Mary Rieke Elementary School, located west of the new high school building and at lower elevation. Proposed gates at the north and south ends of Rieke Road would be open or closed in accordance with school hours; the designers and PPS representatives fielded questions about car access, pedestrian/bicyclist intermixing and longer-term community concerns, as the path was identified in long-term planning documents for Hillsdale developed in the 1990s. Design Commission Vice Chair Joe Swank said:
I have some concerns about the gate…This is kind of an appendage in there’s an elementary school that shares a site that’s separated by a road and we’re adding gates in the Ida B. Wells bond contract to that road that is really about Rieke Elementary’s safety and Rieke Elementary students. That’s different than the existing condition. And that’s the rub, I think, with the community, is that we’re changing the existing condition to something lesser through an argument that’s not related to Ida B. Wells but instead is related to Rieke Elementary. I’m struggling a little bit with this, just from an operational standpoint. These gates are going to take maintenance and a bunch of other things. I would challenge the landscape team, the design team, and PPS to think a little more creatively about how to separate those things.
Designers also fielded questions about ingress and egress on the east side of the new school building, with special attention to the Ida B. Wells outdoor pool and prospective school building access in the summer.
Portland Public Schools regards the design work as 75 percent complete, with construction slated to begin December 2026. In order to gain approval, the project will be required to go through both a Design Review and Conditional Use Review. The school building is expected to be completed before the 2029-30 academic year, with athletic field renovations finished by fall 2030.
The Feb. 19 Portland Design Commission meeting number is EA 25-092982.
Drawings










So glad to see the blog return to activity. The City can really use a boost, and investment in renewal/development is critical to keeping the City functioning. Great to see a new Portland school in the neighborhood. Portland started to feel like a second rate place to send your child to after being at the newer Beaverton or Hillsboro facilities.