A two story concert and event venue at Lloyd Center is currently under construction after receiving approval from the design commission in 2024. The proposed venue, with a flexible capacity for 2,000 to 4,250 attendees, is approximately 67,000 square feet in size and will include the main event space, a mezzanine, as well as supporting spaces. The building is designed by Works Progress Architecture and co-developed by Monqui Presents and AEG Presents.

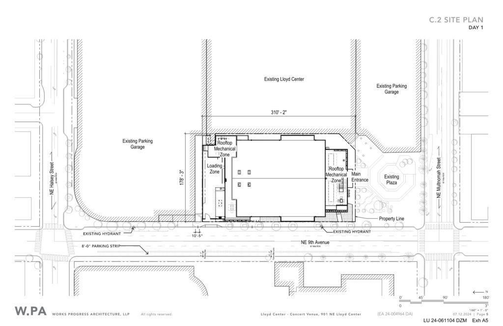
The venue is being built in the location of the former (now demolished) Nordstrom on NE 9th Ave, in between NE Halsey St and NE Multnomah St. The project is zoned Central Commercial with Design Overlay. The parcel is adjacent to but separate from the larger Lloyd Center Master Plan, goals of which include using this location to connect the venue to future developments. The existing plaza space at the corner of NE 9th and NE Multnomah will be maintained, and be integrated into the main entrance of the space.


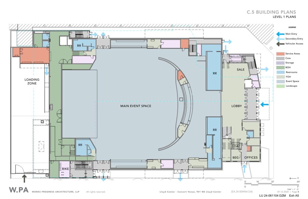
When entering the building from the main entrance at NE Multnomah, venue goers will be find themselves in a lobby space that has ticket booths, a coat closet, and restrooms. There will also be access to the upper floors from the level 1 lobby. Along with public space, there will also be offices for staff.



Secondary entrances can be found on all sides of the building. A corridor on the North side of level 1 gives back of house access to the loading dock, restrooms, and a bike room.



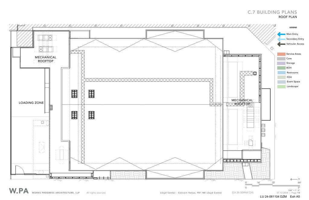
Level 2 also has a lobby space with restrooms, storage, and access to an exterior terrace. The mezzanine overlooking the main event space is also accessed from the level 2 lobby. Mechanical units are to be located at the level 2 roof.
Key elements of the exterior include painted CMU block, reinforced concrete panels, Hardie panels, and metal panels. All with dark finishes that are offset through the use of glazing with a film application of varying colors.
Landscaping can be seen throughout the project with planting beds at the ground level exterior and rooftop planters at the terrace. A wall mounted trellis is also proposed at the buildings facade. Other exterior features include a mural, bike racks, and lighting.





The project brings together performance and public space to create a new attraction for the city of Portland. The project was approved by the Design Commission on October 17, 2024. In the findings, it was noted that the project can act as the first stage of development for the larger master plan for the mall:
This project, by virtue of being a major event entertainment destination, has the potential to be the catalyst for the larger master plan, driving pedestrian traffic and creating another reason to live, work, rest and play in the Lloyd District.
The decision and supporting materials can be found here. A permit for the demolition of the former Nordstrom was issued June 6th, 2025 and a permit for the new work issued September 4th, 2025.
The new music venue is expected to open in 2027. A future post on Next Portland will cover the approval of the Lloyd Center Master Plan.
Plans, Sections and Elevations












