The Historic Landmarks Commission has reviewed designs for the renovation and expansion of the Grove Hotel. The project will include the renovation and seismic upgrade of the existing building fronting onto W Burnside, as well as the construction of a new 99′ tall tower to replace the existing theater addition. The addition would have the lobby and main entrance to the hotel at the ground level, and a rooftop restaurant at the 9th floor. New retail spaces would be created on the ground level of the original building, and a basement level “speakeasy” will be accessed from NW 5th Ave. The architectural design is by Portland based Surround Architecture with New York based Studio Tack acting as design consultants.

The hotel was originally built in 1906, as the Hotel Philip. A theater addition was built in 1920, facing NW 4th Ave. A fire in 1927 and the widening of W Burnside in the 1930 resulted in the removal 20′ from the front of the building, as well as the demolition of the 50′ tall fly tower on the theater. The current Mediterranean style facade seen today dates from then. Since the end of its use as a single room occupancy hotel in 2010 the Portland Development Commission has attempted to developer interested in renovating the building. In May of 2014 a team that includes Naito Development and Eagle Point Hotel Partners was chosen to develop the building as a boutique hotel. The existing building is not individually listed on the National Register of Historic Places, but is listed as a contributing in the New Chinatown / Japantown Historic District.




Exterior work to the existing building would include repainting the existing stucco, and replacing the existing vinyl windows—added during its last years as an SRO—with new aluminum clad wood windows. A new aluminum clad wood storefront system would be added at the ground floor, modeled after the small amount of original wood storefront that remains.
The primary material for the addition would be a dark colored brick, with dark colored stucco on the property line walls to the north and west. Metal paneling would be used on the oriel window projection, and at the 9th floor penthouse. Fiberglass windows are proposed at the upper floors. At the ground floor a steel storefront system by Hopes is proposed, with a glazing pattern inspired by East Asian designs.

The project has gone before the Landmarks Commission once before for Design Advice, at which time the project was very well received. A Staff Report and Recommendation to the Landmarks Commission [PDF], published before the September 14th hearing, recommended approval for the project. Three letters of support were received prior to the hearing: one from the AIA Portland Historic Resources Committee; one from the Old Town Chinatown Community Association; and one from journalist Randy Gragg. Oral testimony in support was also received from one person speaking on behalf of both the Lan Su Chinese Garden and the Old Town Chinatown Community Association.
Despite the recommendation for approval, three out of four Commissioners present at the hearing had major concerns about the height of the project, which maxes out the Zoning Code allowances for the site. A fourth Commissioner admitted he would prefer a shorter building, but felt the height was worthwhile trade off for the renovation of the existing building. The Commissioners in opposition to the height indicated that 75′, including mechanical equipment and elevator overruns, would be the maximum height that they saw as approvable. Additional concerns were raised about the oriel window, which was described as potentially “phenomenal” for another part of the city, but inappropriate for a historic district.
At the end of the hearing the applicant described the difference between the hearing and previous Design Advice hearing as being like “night and day”. The applicants initially requested a vote, which would have likely resulted in denial, before agreeing to return on October 12th at the suggestion of Bureau of Development Services staff. Building permits are currently under review for the project, but cannot be issued until the project has been approved, and the decision recorded with the Multnomah County Recorder.
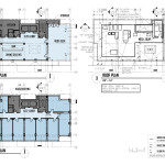
Plans, Elevations and Sections
- Plan – Vicinity
- Plan – Site
- Plan – Basement
- Plan – Ground
- Plan – Level 2
- Plan – Level 3
- Plan – Levels 4-5
- Plan – Levels 6-8, 9 & Roof
- Elevation – South
- Elevations – East & West
- Elevation – North
- Sections
- Sections













It’s amazing how many hotels are slated for Old Town. Most people who are familiar with Portland would never book a hotel room in Old Town, given how thick on the ground the mentally ill and hard drug using homeless population is there. A sufficient number of new hotels will create a certain critical mass of affluent people, who will lead to the homeless population being pushed elsewhere. However, I wouldn’t want to be the developer who builds the first or second hotel. In this case, the hotel will be directly across from that Right 2 Dream Too place. Tourists don’t want to stay smack in the middle of skid row. Even if they aren’t familiar with the area, they’ll leave reviews online to notify potential future guests at the hotel. Obviously, the developers are building these with the expectation that they will be profitable, so I’m guessing they must have some sort of plan?
WTF is going on with this commission?! I generally dislike new construction that tries to look old, but this one is done very well. Frankly, projects like this are EXACTLY what the commission should be saying yes to – thoughtful design, attention to detail, and tall = density = urban! Night and day improvement over the existing. More reason for projects to start bypassing the city via state level approvals.
Re: The Grove Hotel. The north elevation is unsightly with the charcoal gray vertical metal panels at the penthouse set flush with the north stucco wall of the lower floors. Perhaps the penthouse metal panel screen could be set back from the north façade, or a less heavy, generic penthouse cladding material could be chosen.
The Historic Landmarks Commission, in denying this project the height that is allowed in the zoning code, may very well be acting in way that has no legal basis. I would not be surprised to see legal action. At the very least, by they are highly inconsistent and unprofessional. What a shame.
I agree with you Dustin. Looks like a thoughtful design.
The ironic thing about the work that the Landmarks Commission does is it’s sometimes to the detriment of the neighborhoods they’re trying to preserve. New development is forced to mimic older buildings using modern construction methods and materials and they often end up looking terrible. Old Town and NW will eventually resemble Disneyland.
The height on this building makes complete sense considering it’s right across Burnside from much taller buildings. I am would like to know who was there from the commission, considering they have 7 members and only 4 were present.
The members present were Harris Matarazzo, Jessica Engeman, Paul Solimano and Kirk Ranzetta. Commissioner Solimano was the sole member in support of the height as presented.
i’d love to see this thing succeed!