The Abigail Apartments are currently under construction at NW 13th & Raleigh. The project, being built for Bridge Housing, will offer 155 apartments, with 127 apartments reserved for families earning 30% to 60% of Portland’s Median Family Income. These units will join 2,200 units of existing affordable housing in the River District Urban Renewal Area, a number which while large, has fallen short of a 1994 target that 35% of new buildings in the area be affordable. The architects for the project are Ankrom Moisan, who also designed the nearby Ramona apartments and The Sitka, which are also affordable housing.
The 6 story building is composed of two volumes, linked by a narrow bridge structure. The west portion of the building, which faces NW 13th Ave, has a rectangular form, and is clad is in a light brick veneer. The east building, which faces the railroad tracks and the river, is more irregular in form, and is clad in a darker red/brown brick veneer.
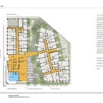
The project will require the extension of both NW 13th Ave and NW Raleigh, neither of which currently exist at the project site. NW Raleigh will be built in a temporary narrower configuration until the block to the south of it is developed. The building will have have a raised loading dock along NW 13th Ave, as a number of other projects will also have. A small cafe will located at the corner of NW 13th and Raleigh.
The project is due for completion in the Spring of 2016.
Existing Context
The site was previously vacant land owned by Hoyt Street Properties.
Plans, Sections, Elevations
- Plan – Vicinity
- Plan – Site
- Plan – Below Grade Parking
- Plan – First Floor
- Plan – Second to Sixth Floors
- Elevation – East
- Elevation – North
- Elevation – South
- Elevation – West
- Section

















Have been tying to get a hold of the leasing office for the Abigail Apartments that are to be open soon in the Pearl district in Portland,Or on Nw 14th and Reigh st . The leasing office is possessively open now as of the 10th of May and I have tried several times to call and I have also been down to the office,but there has not been anyone there and the phone just rings of the hook. I sent for information about the Abigail way back in January of this year and they did send me a postcard letting me know I would be put on their interest list. I want to know if you can help me to get in touch with someone that can help-I need housing,I’m in need of a low income apartment and would be interested in living at the Abigail. Like I mentioned earlier,I have tried several phone #’s and all I get is information about the different apartment complexes. I have not been able to talk to anyone. There is not an email address that I can send an email to them. I would really appreciate it very much if someone could help me. My phone # is 503-866-2065 and my email is cnicholls1946@gmail.com. Thank You,Char
a
.Char, Did you hear anything yet? We are interested in this property as well, we have just relocated from the SouthEast and would like to inquire.
[deleted by moderator]