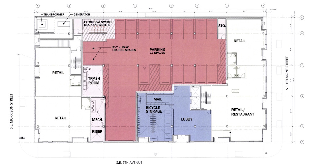
Ankrom Moisan Architects have submitted drawings of a proposed apartment building in the Central Eastside for Design Review. The 6 story building at 915 SE Belmont St will include 105 apartment units over ground retail. 17 vehicular parking spaces are proposed. The project, reported on by The Oregonian in 2013, is by developer Foresight Development & Real Estate, who previously renovated the Grand Central building one block to the west.
The half block site is located on SE 9th Ave between SE Belmont St and SE Morrison St. It is currently used for surface parking. Nearby projects include the Goat Blocks and the Modera Belmont.
A Request for Response [PDF] was sent to service and technical review agencies and to the Beckman Community Association on April 24th. A public hearing before the Design Commission is currently scheduled for Thursday June 11th 2015.


