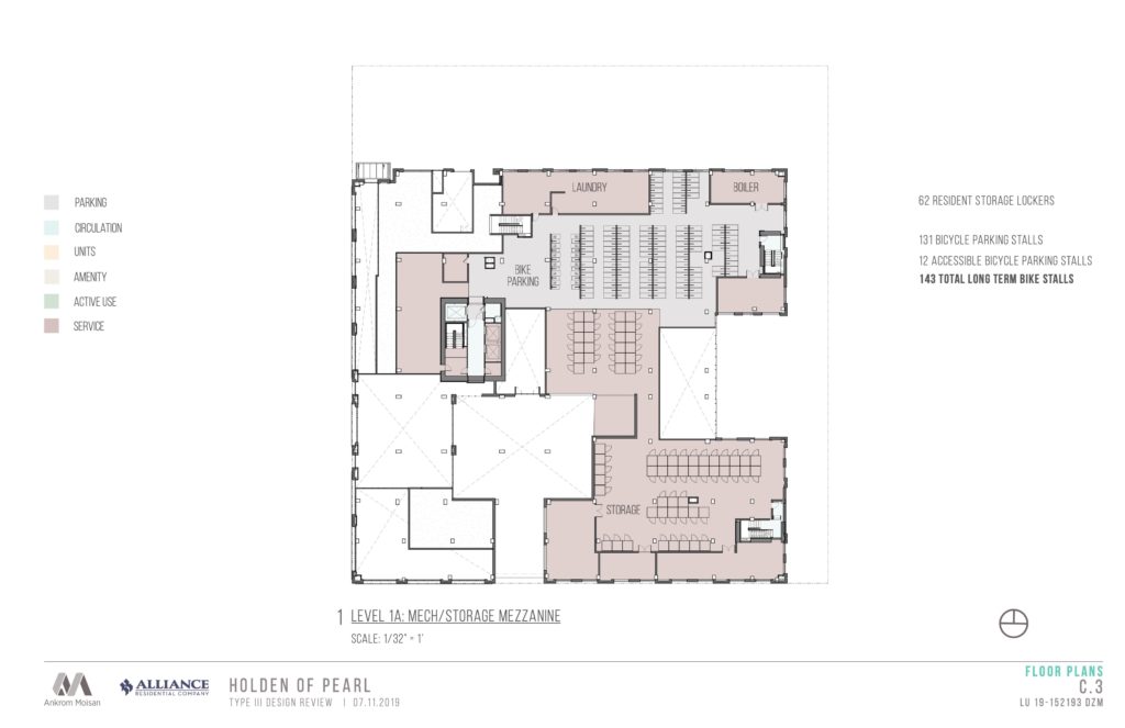
The Design Commission has approved the Holden of Pearl, a senior living facility designed by Ankrom Moisan Architects for Alliance Realty Partners. The 16-story building will include 218 independent and assisted living units for seniors, as well as a memory care facility. 140 vehicular parking spaces and 74 bicycle parking spaces are proposed in a below grade parking garage. 143 bicycle parking spaces and 62 resident storage lockers are proposed in a mezzanine above the first floor.

The Holden of Pearl site is a vacant full block at the north end of the Pearl, on the site of the former Hoyt Street Railway yards. The current owner, Hoyt Street Properties, intends to sell the land to Alliance Realty Partners.
The site is bound by NW Quimby, NW 13th, future NW Raleigh and future NW 12th Ave. The two future streets would be built as private streets with pedestrian easements, as allowed by the 1989 Hoyt Street Yards Central City Masterplan and 1999 amendments.
The north end of the Pearl has grown rapidly in recent years, with a large number of recently completed or under construction buildings, including Block 17, The NV, Vista Pearl, Modera Pearl, Broadstone Reveal, the Abigail and Vibrant!.


The main building lobby and two commercial spaces would front a raised loading dock on NW 13th Ave. Drop offs would be provided through an internalized vehicle turnaround, accessed from NW Quimby St.
Memory care units, which are required by the state to be at the ground floor, will be located along NW Quimby St and NW Raleigh St. An enclosed memory care courtyard would face east onto NW 12th Ave.
Levels 2 and 3 of the building’s podium will be home to the assisted living units. A landscaped roof terrace will be created at level 4, with dining rooms and amenity areas looking out onto it. The building’s tower, which rises from levels 5 to 16, would be home to the independent living units and amenity spaces.


The primary material for the building will be red brick. Other materials proposed include metal panel, aluminum storefront system and vinyl windows.


The Holden of Pearl was approved at its second Design Review hearing, held on August 1st, 2019. The project had previously been in front of the Design Commission for Design Advice Requests in December 2018 and February 2019, and an initial Design Review hearing in July 2019. In the conclusion to the Final Findings and Decision by the Design Commission the evolution of the project at the ground level was noted:
The proposal has come a long way since the original concept with the vehicle drop-off and porte-cochere on Raleigh. Further refinement of elements in the public realm as a result of the first hearing ensures this development will be a welcome addition to this Pearl neighborhood and build on its rich pedestrian amenities.
Building permits will need to be obtained before construction can begin.
Drawings

Plan | Site 
Plan | Level P1 
Plan | Level 01 
Plan | Level 1A 
Plan | Level 2 
Plan | Level 3 
Plan | Level 4 
Plan | Levels 5, 6-15, 16, Roof 
Elevation | North (NW Raleigh) 
Elevation | West 
Elevation | South (NW Quimby) 
Elevation | East (NW 12th) 
Section 
Section 
Section
Great, another boring boxy building for the pearl. Can we build something unique anytime soon? Portland has 0 iconic buildings and that needs to change.
Whenever Portland does do something unique such as the yard, people will then say that it looks ugly or an eyesore. And when Portland does something other than ‘unique’, people then complain it looks boring. You just can’t win with the locals, they are too picky.
How about you do more iconic skinny towers. Yard is a box shaped junk as well
Like the upcoming Central Park Tower or 432 Park Avenue in NYC? Skinny towers would be an amazing addition to the skyline. But it will however dwarf our current skyline.
I get your point generally but I don’t agree that the next architectural “Portland Icon” should be a senior housing complex.
If anyone really understands the History of Portland Architecture, they would NEVER say Portland does not have any ICONIC Buildings . . . . . and would appreciate why so may Portland Buildings look the way they do. . . .
If you understand the history of Pietro Belluschi and Portland, every modern building that is built in Portland has his hand-print on it . . . from SOM, to ZGF to BORA to GBD . . . .
“Pietro Belluschi was an Italian architect, a leader of the Modern Movement in architecture, and was responsible for the design of over 1,000 buildings. Born in Italy, Belluschi’s architectural career began as a draftsman in a Portland, Oregon firm . . . “
As someone who likes more variety in design, I can see why this happens over and over again.
‘Boring’ design usually offers a safe return for investors, a lower construction cost, and a smoother design review and permitting process…usually. Until fewer people decide to live in these places this ‘boring’ design will keep happening.
Also, they can’t all be unique or we’d have no urban fabric. Buildings like this are what make the unique ones so special.
I agree with your point. Not every building needs to be iconic. Most buildings in all great and not-so-great cities are background buildings to the famous ones that we know. Honestly, think about New York, Paris, Florence, San Francisco. What we must demand is high quality craftsmanship and attention to urban design so that all buildings fit well in their respective settings and contribute to the vitality of the street.