Last August the Design Commission approved the Northbound 30 Collaborative, a collection of eight five-story residential buildings designed by Jones Architecture and Waechter Architecture, for local developer Noel Johnson. The development will include 145 residential units in total. The buildings will be framed with cross-laminated timber.


The project site is in Northwest, either side of NW 30th Ave, south of NW Nicolai. South of the project a separate development of for-sale row houses facing NW Wilson St is proposed, designed by Potestio Studio with Mildren Design Group acting as Architect of Record. In 2019 Mill Creek Residential Trust proposed the Modera Nicolai on the adjacent site at NW 29th and Nicolai, however that did not move forward. In 2020 a new home for the Northwest Children’s Theater was proposed on the same site.



Building 1
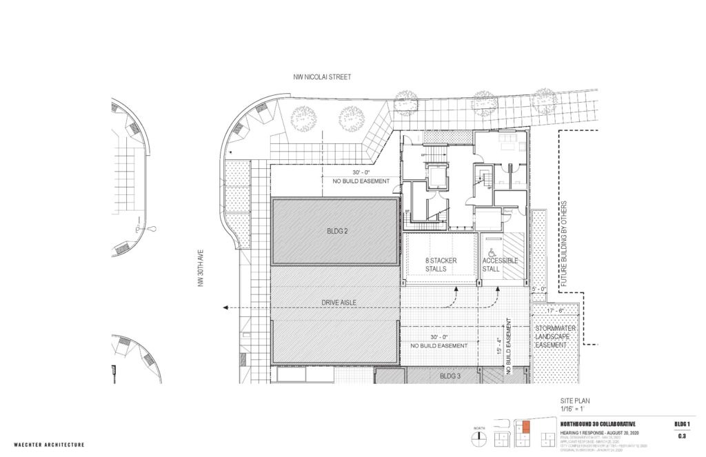
The design of Building 1 is by Waechter Architecture. The building will include 19 residential units, 8 stacked parking stalls and 1 accessible parking stall. The main entry to the building will be from NW Nicolai St, with parking accessed from NW 30th, through a drive aisle under Building 2.
Exterior materials will include box rib metal panel, black vinyl windows, aluminum storefront and wood paneling.


Building 2
The design of Building 2 is by Jones Architecture. The building will include 17 residential units, 3 at-grade parking stalls and 1 accessible parking stall. The main entry to the building will be from NW Nicolai St, with parking accessed from NW 30th, with a drive aisle shared with Building 1 and 3.
Exterior materials will include brick, wood cladding, vinyl windows and aluminum storefronts.

Building 3
The design of Building 3 is by Waechter Architecture. The building will include 16 residential units, 3 at-grade parking stalls and 1 accessible parking stall. The main entry to the building will be from a plaza facing NW 30th Ave. Parking will be accessed from NW 30th, through a drive aisle under Building 2.
Exterior materials will include box rib metal panel, black vinyl windows, aluminum storefront and wood paneling.


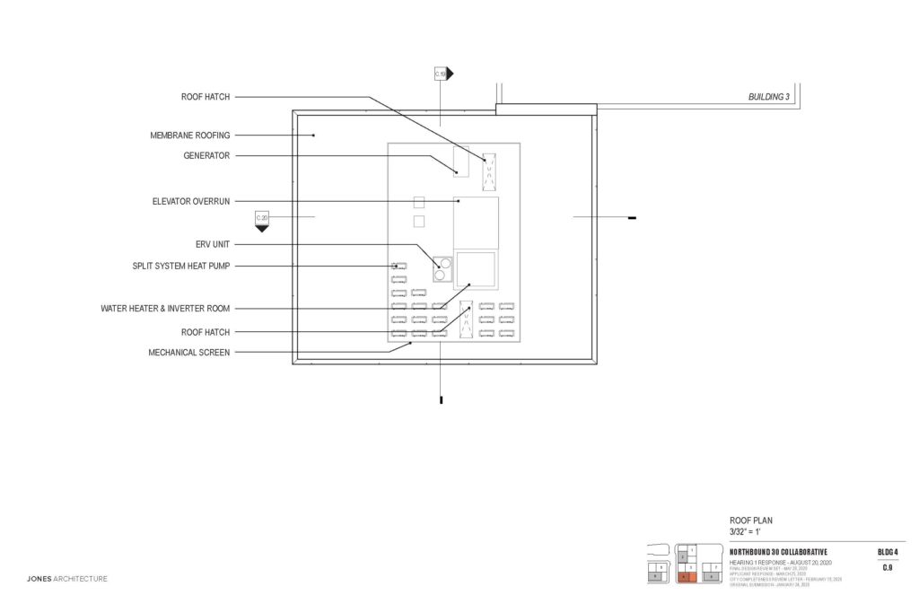
Building 4
The design of Building 4 is by Jones Architecture. The building will include 17 residential units, 8 stacked parking stalls and 1 accessible parking stall. The main entry to the building will be from NW 30th Ave. Parking will be accessed from a new Wilson St Alley, shared with Building 8 and the townhomes to the south.
Exterior materials will include brick, wood cladding, vinyl windows and aluminum storefronts.

Building 5
The design of Building 5 is by Waechter Architecture. The building will include 19 residential units, 8 stacked parking stalls and 1 accessible parking stall. The main entry to the building will be from NW 30th Ave. Parking will be accessed from NW Roosevelt St, through a drive aisle shared with Building 6.
Exterior materials will include box rib metal panel, black vinyl windows, aluminum storefront and wood paneling.


Building 6
The design of Building 6 is by Jones Architecture. The building will include 19 residential units, 3 at-grade parking stalls and 1 accessible parking stall. The main entry to the building will be from a plaza facing NW 30th Ave. Parking will be accessed from NW Roosevelt St, through a drive aisle under Building 6.
Exterior materials will include brick, wood cladding, vinyl windows and aluminum storefronts.

Building 7
The design of Building 7 is by Waechter Architecture. The building will include 19 residential units, 8 stacked parking stalls and 1 accessible parking stall. The main entry to the building will be from NW 29th Ave. Parking will be accessed from NW 29th Ave, through a drive aisle shared with the development at NW 29th and Nicolai.
Exterior materials will include box rib metal panel, black vinyl windows, aluminum storefront and wood paneling.


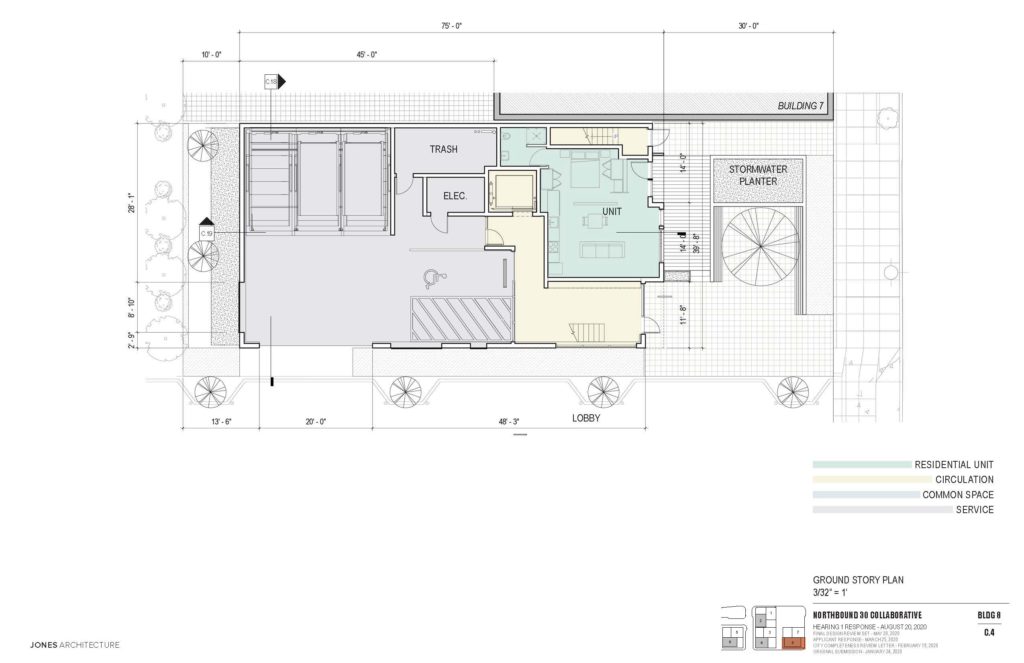
Building 8
The design of Building 8 is by Jones Architecture. The building will include 19 residential units, 8 stacked parking stalls and 1 accessible parking stall.. The main entry to the building will be from a plaza facing NW 29th Ave. Parking will be accessed from a new Wilson St Alley, shared with Building 4 and the townhomes to the south.
Exterior materials will include brick, wood cladding, vinyl windows and aluminum storefronts.

The Northbound 30 Collaborative was approved by the Design Commission on August 20, 2020. In the conclusion to the Final Findings and Decision by the Design Commission the project was praised for its “unique checkerboard design”:
The proposed development of eight (8), 5-story multi-dwelling buildings, approximately 15,000 sf each, will bring in new housing opportunities and provide repair to an underused area. The unique checkerboard design approach for the overall site creates opportunities for maximizing open space, creating usable courtyards, and supporting pedestrian connectivity at the ground level. The high-quality, smaller footprint buildings, alternatively designed by two different design firms, provide opportunities to create a sense of place, and consistency but also differentiation.
Buildings permits will need to be obtained before construction can begin.
Note: this article originally identified the developer as Cairn Pacific, instead of Noel Johnson. We regret the error.
Drawings

Overall Site Plan 
Building 1 | Site Plan 
Building 1 | Plan | Ground 
Building 1 | Plan | Third 
Building 1 | Plan | Fifth 
Building 1 | Plan | Roof 
Building 1 | Elevation 
Building 1 | Elevation 
Building 1 | Elevation 
Building 1 | Elevation 
Building 1 | Section 
Building 1 | Section 
Building 2 | Site Plan 
Building 2 | Plan | Ground 
Building 2 | Plan | Second 
Building 2 | Plan | Third 
Building 2 | Plan | Fourth 
Building 2 | Plan | Fifth 
Building 2 | Plan | Fifth Mezzanine 
Building 2 | Plan | Roof 
Building 2 | Elevation 
Building 2 | Elevation 
Building 2 | Elevation 
Building 2 | Elevation 
Building 2 | Elevation 
Building 2 | Section 
Building 2 | Section 
Building 3 | Site Plan 
Building 3 | Plan | Ground 
Building 3 | Plan | Third 
Building 3 | Plan | Fifth 
Building 3 | Plan | Roof 
Building 3 | Elevation 
Building 3 | Elevation 
Building 3 | Elevation 
Building 3 | Elevation 
Building 3 | Section 
Building 3 | Section 
Building 4 | Site Plan 
Building 4 | Plan | Ground 
Building 4 | Plan | Second 
Building 4 | Plan | Third 
Building 4 | Plan | Fourth 
Building 4 | Plan | Fifth 
Building 4 | Plan | Roof 
Building 4 | Elevation 
Building 4 | Elevation 
Building 4 | Elevation 
Building 4 | Elevation 
Building 4 | Section 
Building 4 | Section 
Building 5 | Site Plan 
Building 5 | Plan | Ground 
Building 5 | Plan | Third 
Building 5 | Plan | Fifth 
Building 5 | Plan | Roof 
Building 5 | Elevation 
Building 5 | Elevation 
Building 5 | Elevation 
Building 5 | Elevation 
Building 5 | Section 
Building 5 | Section 
Building 6 | Site Plan 
Building 6 | Plan | Parking 
Building 6 | Plan | Ground 
Building 6 | Plan | Second 
Building 6 | Plan | Third 
Building 6 | Plan | Fourth 
Building 6 | Plan | Fifth 
Building 6 | Plan | Roof 
Building 6 | Elevation 
Building 6 | Elevation 
Building 6 | Elevation 
Building 6 | Elevation 
Building 6 | Section 
Building 6 | Section 
Building 7 | Site Plan 
Building 7 | Plan | Ground 
Building 7 | Plan | Third 
Building 7 | Plan | Fifth 
Building 7 | Plan | Roof 
Building 7 | Elevation 
Building 7 | Elevation 
Building 7 | Elevation 
Building 7 | Elevation 
Building 7 | Section 
Building 7 | Section 
Building 8 | Site Plan 
Building 8 | Plan | Ground 
Building 8 | Plan | Second 
Building 8 | Plan | Third 
Building 8 | Plan | Fourth 
Building 8 | Plan | Fifth 
Building 8 | Plan | Roof 
Building 8 | Elevation 
Building 8 | Elevation 
Building 8 | Elevation 
Building 8 | Elevation 
Building 8 | Section 
Building 8 | Section
So can we agree that this is prima facie evidence that IZ in Portland ( or Oregon) is not working? 145 units and zero affordable units!
Ya. This is fucking ridiculous. What a way to skirt the rules. Just build 5 buildings all under 20 units! Definitely need to revisit the zoning rules.
As I recall, there’s a similar project proposed on NE Martin Luther King at Failing, a row of four 19-unit buildings abutting each other on a series of adjacent lots.
People respond to incentives. It totally makes sense that if 20+ units have an incremental cost, everyone is going to build buildings with under 20.
But let me point out another fact of the incentive structure. Building permits have plunged in Portland more generally to levels not seen since the Great Recession. That’s been super attractive for landlords that already own properties that see their returns go up, but obviously developers can’t make the math work. Instead of trying to increase the costs of building in Portland, what about increasing the cost of ownership and DECREASING the cost of building in Portland? Then we’d not be in this weird zone of unaffordable housing and yet very limited new building to grow our way out of it….
Chip, I could follow your line of thought until you suggest increasing the the cost of ownership as helping to alleviate the affordable housing problem. Since all dwellings are owned by someone, whether the residents themselves or landlords, wouldn’t more expensive ownership drive up the cost for all residents, either directly or indirectly?
Well I think Chip may have meant decrease the excess profitability enjoyed by owners by increasing supply of units. I think that while it isn’t great that builders are skirting the intention of IZ, in general more units over time are what we need. The more built the lower rents should theoretically go.
I don’t know exactly what pencils out for a developer or not, but if changing the rule to apply to less than 20 unit developments causes ever FEWER units to be built then IZ or not, housing affordability will never be achieved (unless of course people start leaving Portland, which I suppose could happen for those who can work remotely).
I’m not saying that IZ is the right answer to get affordable housing. It has functioned to show that the city was getting “some” affordable housing. But it’s where we are now. And that line of argument is now called into question when folks see how it is being circumvented. We could try for a few tweaks at the State, say, “site” instead of “building”, and defined “site” as a group of contiguous similarly-owned lots.
I’m not sure this proposal is evidence alone that IZ isn’t working, there are multiple examples of other developments going in with IZ, which is incredibly easy to meet by creating fewer multiple bedroom “affordable” units. Without seeing the proforma, it’s impossible to say whether this decision to have 8 buildings with fewer overall units instead of 3 buildings with twice as many units makes much financial sense. I really doubt it considering the lower building efficiency inherent with two sets of stairs in each relatively small building. Also, would be interesting to see where falling development activity in Portland compares to similar markets and what other factors could be associated with it.
Yeah there’s a good amount of apartments going up with IZ being implemented, this is just one example of it being avoided.
Most of the buildings on 50 x 100′ CM lots on collectors like Division, for instance, are now less than 20 units. Often they are only 3 stories to avoid elevators On these lots, before the requirements, they would have been 22-24 units and 4 stories.
On larger lots, there have been quite a few that split the development into two buildings of less than 20 units each. Now, there have been at least 3 developments that were 3 or more buildings. At one point in the past BPS did a chart showing how many under-20 buildings were going up. I’d like to see that chart updated.
More retail space that will stay empty for years.
There’s no retail space proposed in the development.
This looks great. I know it wasn’t the intent, but I think it’s great that the IZ requirements result in a lot of 19 unit buildings. Fine-grained urbanism vs. block-level development, etc. More interesting and more resilient in the long run. I think it’s an acceptable trade-off.
That would be true if we had a lot of places where you could build these small but relatively dense buildings. And yes, RIP passed, so we can build 4-plexes. But in general, there’s waaayy to much acreage, along major transit corridors, and easily reachable by bike, where the zoning is only R5. If we had all land within a half a mile even of these corridors zoned for 4-story buildings, and the economics worked out, we could be satisfied with smaller buildings, but lots of them. As it is, the few spaces you can build multifamily or mixed use are within 100′ of the corridor. Not even a block! We need 8-story buildings along these corridors to make up for the failure of leadership and shortsightedness of our citizenry to allow us to build an actual city, not suburbs with a few commercial corridors!